Vuokrataan toimistotilat - Helsinki
Lintulahdenkatu 10, Sörnäinen, 00500 Helsinki #10800456
Arvotoimistotilaa Helsingin Sörnäisestä
Osoite
Lintulahdenkatu 10, 00500 Helsinki
Tilatyyppi
Toimistotilaa
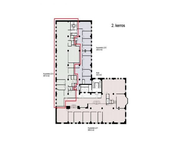
357 m2
Muuta
Arvotoimistotilaa Helsingin Sörnäisistä. Vuokrattavana on 2. kerroksen 357m2 toimistotila.
Rakennus on arkkitehti Väinö Vähäkallion suunnittelema, jota nykyisin arvostetaan yhdeksi 1920-luvun tiiliklassismin merkittävimmistä monumenteista.
Talon ensimmäisessä kerroksessa toimii hyvä lounasravintola, ja ylimpään ullakkotilaan on rakennettu edustustilat ja sauna ja sekä kokoustiloja.
Tervetuloa tutustumaan, varaathan välittäjältä oman esittelyaikasi. Voit kysyä meiltä myös muita sopivia vaihtoehtoja, kauttamme löydät juuri teidän tarpeisiinne sopivat tilat. Palvelumme on tilanhakijalle veloitukseton!
Rakennus on arkkitehti Väinö Vähäkallion suunnittelema, jota nykyisin arvostetaan yhdeksi 1920-luvun tiiliklassismin merkittävimmistä monumenteista.
Talon ensimmäisessä kerroksessa toimii hyvä lounasravintola, ja ylimpään ullakkotilaan on rakennettu edustustilat ja sauna ja sekä kokoustiloja.
Tervetuloa tutustumaan, varaathan välittäjältä oman esittelyaikasi. Voit kysyä meiltä myös muita sopivia vaihtoehtoja, kauttamme löydät juuri teidän tarpeisiinne sopivat tilat. Palvelumme on tilanhakijalle veloitukseton!
Vapautuu
Kysy
Rakennusvuosi
1927
Kerros
2
Ota yhteyttä
Tuloskiinteistöt Oy
Rikhardinkatu 2 B 5, 00130 Helsinki
Näytä puhelinnumero
(09) 6841 620
Jorma Ryynänen
Commercial Real Estate Advisor LKV, LVV
Näytä puhelinnumero
+358 40 708 4064
Otto Ahtola
Commercial Real Estate Advisor
Näytä puhelinnumero
+358 40 042 2830
Pyydä lisätietoa
