Vuokrataan toimistotilat - Helsinki
Malminkatu 28, Kamppi, 00100 Helsinki #10800452
Erittäin tasokasta toimistotilaa Helsingin Kampista
Osoite
Malminkatu 28, 00100 Helsinki
Tilatyyppi
Toimistotilaa
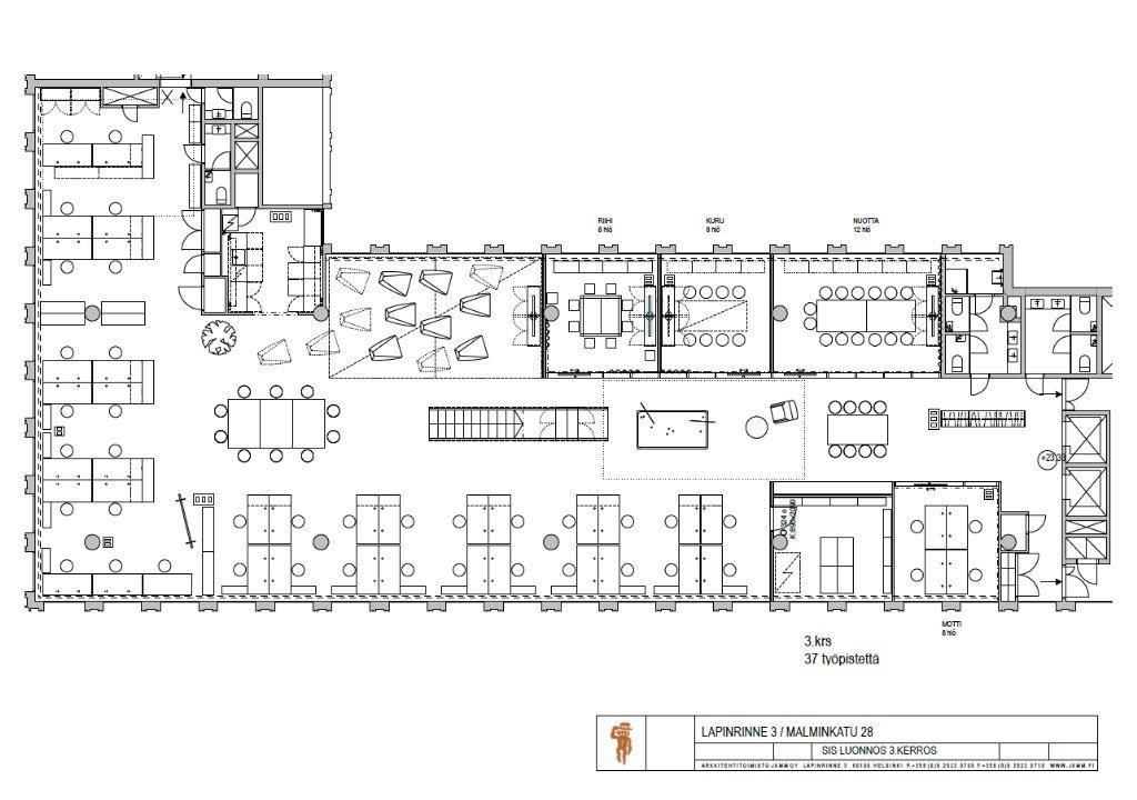
525 m2
Pysäköinti
Hallissa
Muuta
Vuokrataan erittäin laadukasta ja tasokasta toimistotilaa Kampista, vuokrattava tila on 3. kerroksen 525m2 toimistotila.
Kiinteistö Malminkatu 28/ Lapinrinne 3 on valmistunut 1977 ja saneerattu 2015. Kiinteistön sijainti on erinomainen aivan Kampin metroaseman, bussi- ja raitiovaunuliikenteen äärellä, joka mahdollistaa sekä työntekijöiden että asiakkaiden sujuvan saapumisen toimistolle. Kampin kauppakeskuspalvelut liikkeineen ovat aivan kulman takana.
Tilassa on 4kpl neuvotteluhuoneita, 4 x wc tilat + keittiö. Avotilaa, työpisteitä 37kpl. Tilaan kuuluu 2kpl autopaikkoja. Tilaan voi muuttaa nopeasti.
Tervetuloa tutustumaan, varaathan välittäjältä oman esittelyaikasi. Voit kysyä meiltä myös muita sopivia vaihtoehtoja, kauttamme löydät juuri teidän tarpeisiinne sopivat tilat. Palvelumme on tilanhakijalle veloitukseton!
Kiinteistö Malminkatu 28/ Lapinrinne 3 on valmistunut 1977 ja saneerattu 2015. Kiinteistön sijainti on erinomainen aivan Kampin metroaseman, bussi- ja raitiovaunuliikenteen äärellä, joka mahdollistaa sekä työntekijöiden että asiakkaiden sujuvan saapumisen toimistolle. Kampin kauppakeskuspalvelut liikkeineen ovat aivan kulman takana.
Tilassa on 4kpl neuvotteluhuoneita, 4 x wc tilat + keittiö. Avotilaa, työpisteitä 37kpl. Tilaan kuuluu 2kpl autopaikkoja. Tilaan voi muuttaa nopeasti.
Tervetuloa tutustumaan, varaathan välittäjältä oman esittelyaikasi. Voit kysyä meiltä myös muita sopivia vaihtoehtoja, kauttamme löydät juuri teidän tarpeisiinne sopivat tilat. Palvelumme on tilanhakijalle veloitukseton!
Vapautuu
Kysy
Rakennusvuosi
1977
Kerros
3
Ota yhteyttä
Tuloskiinteistöt Oy
Rikhardinkatu 2 B 5, 00130 Helsinki
Näytä puhelinnumero
(09) 6841 620
Jorma Ryynänen
Commercial Real Estate Advisor LKV, LVV
Näytä puhelinnumero
+358 40 708 4064
Otto Ahtola
Commercial Real Estate Advisor
Näytä puhelinnumero
+358 40 042 2830
Pyydä lisätietoa
