Vuokrataan toimistotilat - Helsinki
Lautatarhankatu 8, Kalasatama, 00580 Helsinki #10800447
Modernia toimistotilaa Kalasatamassa
Osoite
Lautatarhankatu 8, 00580 Helsinki
Tilatyyppi
Toimistotilaa
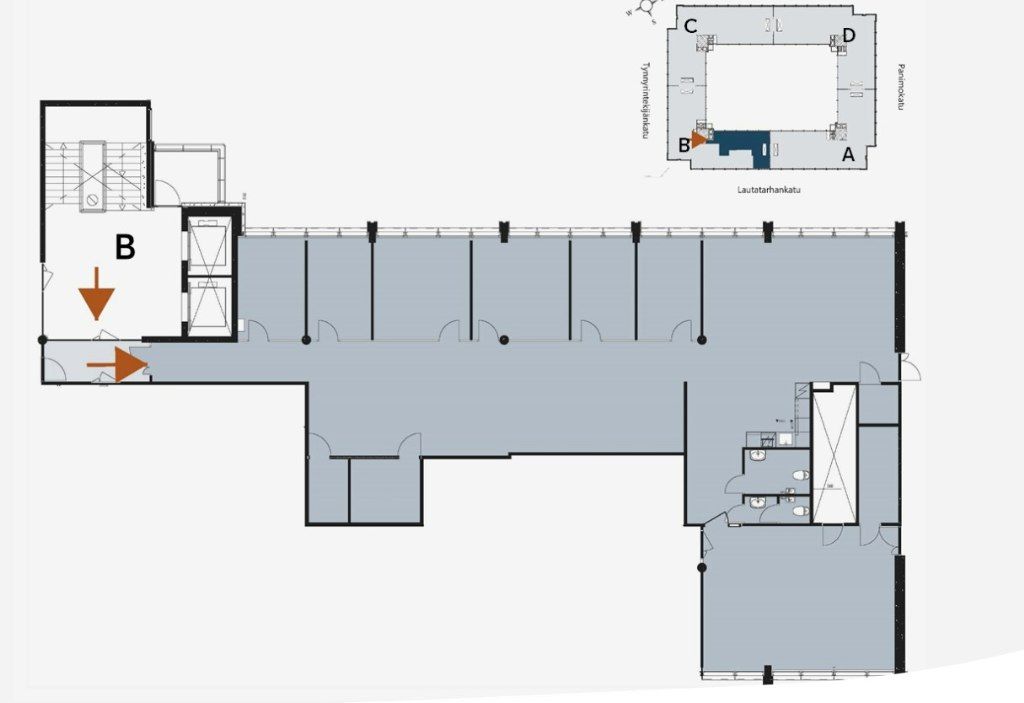
314 m2
Muuta
Vuokrataan Kalasatamasta 314m2 hyvänkuntoinen remontoitu toimistotila, josta on näkymiä niin sisäpihalla kuin Suvilahteen päin. Tila voidaan myös muokata asiakkaan toiveiden mukaiseksi.
Trooli on kolmesta kiinteistöstä muodostuva moderni toimitilakortteli, joka tarjoaa asiakkailleen edustavat puitteet. Vuonna 2002 valmistuneen kiinteistön palveluihin kuuluu mm. lounasravintola, suuri auditorio ja kuntosali suihkutiloineen. Kellarikerroksesta on vuokrattavissa pienvarastotilaa. Kiinteistöllä on LEED-sertifikaatti. LEED (Leadership in Energy and Environmental Design) on amerikkalainen ympäristösertifiointijärjestelmä, jonka avulla tavoitellaan pienempää kiinteistön rakentamisen ja käytön aikaista ympäristökuormitusta.
Troolin omien palveluiden lisäksi ympäristössä on runsaasti lisää palveluita - maukkaita ravintoloita Teurastamolla ja tapahtumia Suvilahdessa, REDIn arjen palvelutarjonta, metroasema muutaman minuutin kävelyn päässä sekä loistavat pyörätiet.
Tervetuloa tutustumaan paikan päälle! Kysy myös muita sopivia vaihtoehtoja - palvelumme on tilanhakijoille veloitukseton.
Trooli on kolmesta kiinteistöstä muodostuva moderni toimitilakortteli, joka tarjoaa asiakkailleen edustavat puitteet. Vuonna 2002 valmistuneen kiinteistön palveluihin kuuluu mm. lounasravintola, suuri auditorio ja kuntosali suihkutiloineen. Kellarikerroksesta on vuokrattavissa pienvarastotilaa. Kiinteistöllä on LEED-sertifikaatti. LEED (Leadership in Energy and Environmental Design) on amerikkalainen ympäristösertifiointijärjestelmä, jonka avulla tavoitellaan pienempää kiinteistön rakentamisen ja käytön aikaista ympäristökuormitusta.
Troolin omien palveluiden lisäksi ympäristössä on runsaasti lisää palveluita - maukkaita ravintoloita Teurastamolla ja tapahtumia Suvilahdessa, REDIn arjen palvelutarjonta, metroasema muutaman minuutin kävelyn päässä sekä loistavat pyörätiet.
Tervetuloa tutustumaan paikan päälle! Kysy myös muita sopivia vaihtoehtoja - palvelumme on tilanhakijoille veloitukseton.
Vapautuu
Kysy
Rakennusvuosi
2002
Kerros
5
Ota yhteyttä
Tuloskiinteistöt Oy
Rikhardinkatu 2 B 5, 00130 Helsinki
Näytä puhelinnumero
(09) 6841 620
Jorma Ryynänen
Commercial Real Estate Advisor LKV, LVV
Näytä puhelinnumero
+358 40 708 4064
Nina Meyke
Commercial Real Estate Advisor
Näytä puhelinnumero
+358 50 466 1519
Pyydä lisätietoa
