Vuokrataan toimistotilat - Helsinki
Hiomotie 32, Pitäjänmäki, 00380 Helsinki #10800440
Laadukasta toimistotilaa Helsingin Pitäjänmäellä
Osoite
Hiomotie 32, 00380 Helsinki
Tilatyyppi
Toimistotilaa
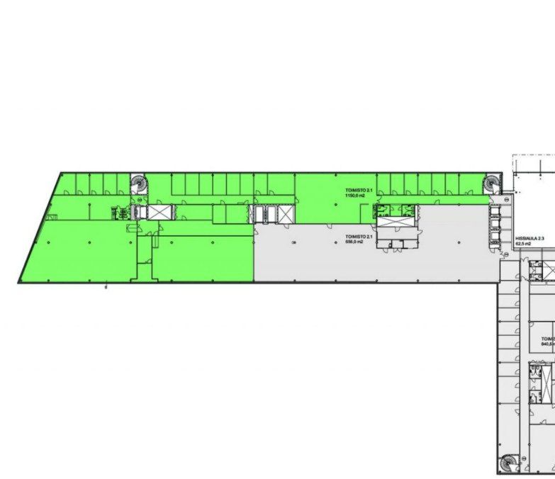
1340 m2
Pysäköinti
Kyllä
Muuta
Näyttävässä Pitäjänmäen Voltissa vuokrattavana 2. kerroksen 1340m2 toimistotila. Tilat on räätälöitävissä asiakkaan tarpeen mukaan combikonttoritilasta aina avotilaksi.
Voltti on näyttävä ja tyylikäs sekä palveluiltaan laadukas toimistotalo Pitäjänmäen yritysalueella, joka on valmistunut 2000. Kiinteistö tarjoaa kaikki tarvittavat palvelut: aulapalvelut, edustustilat, kuntosali, lounasravintola ja sauna.
Alueella on loistavat liikenneyhteydet joka puolelle pääkaupunkiseutua, ja kiinteistössä on lisäksi yli 200 autopaikkaa pysäköintihallissa ja sisäänkäynnin edustalla 24 vieraspaikkaa.
Tervetuloa tutustumaan, varaathan välittäjältä oman esittelyaikasi. Voit kysyä meiltä myös muita sopivia vaihtoehtoja, kauttamme löydät juuri teidän tarpeisiinne sopivat tilat. Palvelumme on tilanhakijalle veloitukseton!
Voltti on näyttävä ja tyylikäs sekä palveluiltaan laadukas toimistotalo Pitäjänmäen yritysalueella, joka on valmistunut 2000. Kiinteistö tarjoaa kaikki tarvittavat palvelut: aulapalvelut, edustustilat, kuntosali, lounasravintola ja sauna.
Alueella on loistavat liikenneyhteydet joka puolelle pääkaupunkiseutua, ja kiinteistössä on lisäksi yli 200 autopaikkaa pysäköintihallissa ja sisäänkäynnin edustalla 24 vieraspaikkaa.
Tervetuloa tutustumaan, varaathan välittäjältä oman esittelyaikasi. Voit kysyä meiltä myös muita sopivia vaihtoehtoja, kauttamme löydät juuri teidän tarpeisiinne sopivat tilat. Palvelumme on tilanhakijalle veloitukseton!
Vapautuu
Kysy
Rakennusvuosi
2000
Kerros
2
Ota yhteyttä
Tuloskiinteistöt Oy
Rikhardinkatu 2 B 5, 00130 Helsinki
Näytä puhelinnumero
(09) 6841 620
Jorma Ryynänen
Commercial Real Estate Advisor LKV, LVV
Näytä puhelinnumero
+358 40 708 4064
Otto Ahtola
Commercial Real Estate Advisor
Näytä puhelinnumero
+358 40 042 2830
Pyydä lisätietoa
