Vuokrataan toimistotilat, näyttelytilat - Helsinki
Erottajankatu 15, Keskusta, 00130 Helsinki #10800424
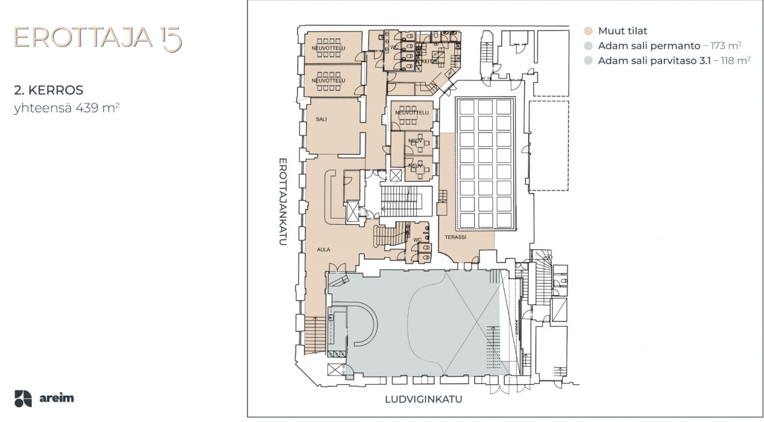
Vuokrataan arvokiinteistön 2. kerroksen tapahtuma ja monitoimitilat jonka keskiössä on perinteikäs ADAMS- sali sekä aula, toimisto ja neuvottelutiloja, kokonaisuus on modernisoitu täyttämään tämän päivän vaatimukset. Tiloissa on jäähdyttävä ilmastointi sekä hyvä valaistus ja tietoliikenneinfra, katso pohjakuva linkistä. SOITA ja SOVI ESITTELY, palvelumme on tilanhakijalle maksuton, puh. 09 7745 100.
Osoite
Erottajankatu 15, 00130 Helsinki
Tilatyyppi
Toimistotilaa
557 m2
Näyttelytilaa
557 m2
Yhteensä
557 m2
Pohjapiirros
Tila soveltuu
Koulutus, coworking
Kiinteistö
Vuonna 1886 valmistuneen kiinteistön komea pääsisäänkäynti on Erottajankadun ja Ludviginkadun kulmassa.
Sijainti
Erottajankadun ja Ludviginkadun kulma.
Pysäköinti
Erottajan parkkihalli vieressä.
Palvelut
Kaikki
Kulkuyhteydet
Julkiset liikennevälineet vieressä tai lyhyen kävelymatkan päässä.
Vapautuu
Heti
Rakennusvuosi
1886
Kerros
2 / 7
Energiatehokkuusluokka
Ei lain edellyttämää energiatodistusta
Näkyvällä paikalla
Hissi
Liitetiedostot
Ota yhteyttä
Senaatin Notariaatti Oy LKV
Lämmittäjänkatu 4 A
FIN-00880 Helsinki
Tel:
Näytä puhelinnumero
+358 9 7745 100
Pyydä lisätietoa
