Vuokrataan toimistotilat - Helsinki
Erottajankatu 15, Keskusta, 00130 Helsinki #10800419
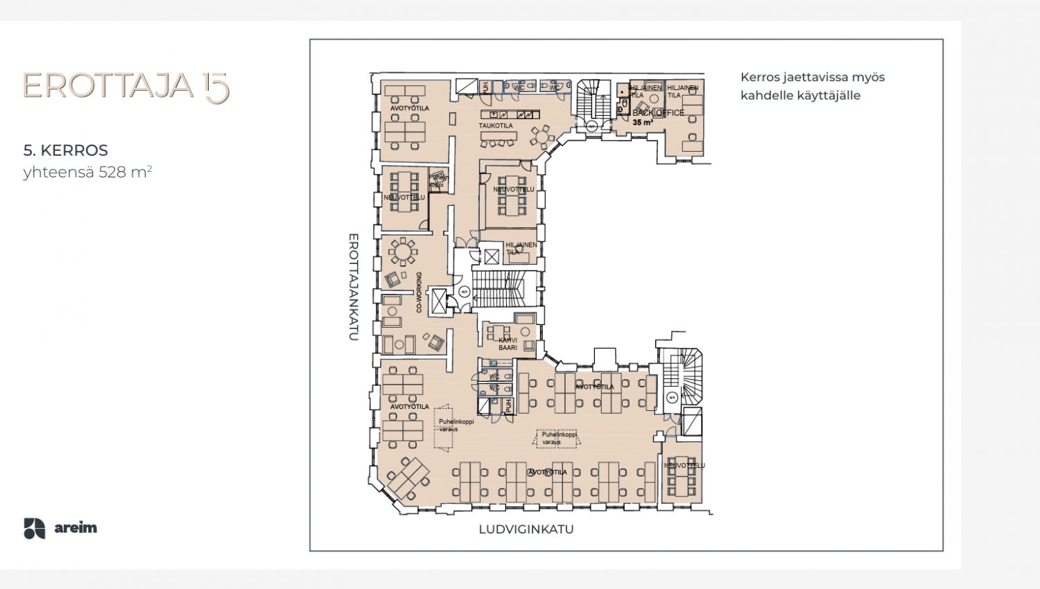
Vuokrataan arvokiinteistön 5. kerroksen 528m monitilatoimisto, joka on modernisoitu täyttämään tämän päivän toimistotyön vaatimukset. Toimistossa on jäähdyttävä ilmastointi sekä nykyaikainen valaistus ja hyvä tietoliikenneinfra, katso pohjakuva linkistä. SOITA ja SOVI ESITTELY, palvelumme on tilanhakijalle maksuton, puh. 09 7745 100.
Osoite
Erottajankatu 15, 00130 Helsinki
Tilatyyppi
Toimistotilaa
528 m2
Pohjapiirros
Kiinteistö
Vuonna 1886 valmistuneen kiinteistön komea pääsisäänkäynti on Erottajankadun ja Ludviginkadun kulmassa ja 2. kerroksessa on vastaanottoaula, neuvottelukeskus ja historiallinen Adams-sali, joka palvelee niin business-loungena kuin isoissakin juhla-/kokoustilaisuuksissa.
Sijainti
Erottajankadun ja Ludviginkadun kulma.
Pysäköinti
Erottajan parkkihalli vieressä.
Palvelut
Kaikki
Kulkuyhteydet
Julkiset liikennevälineet vieressä tai lyhyen kävelymatkan päässä.
Vapautuu
Heti
Rakennusvuosi
1886
Kerros
5 / 7
Energiatehokkuusluokka
Ei lain edellyttämää energiatodistusta
Näkyvällä paikalla
Hissi
Liitetiedostot
Ota yhteyttä
Senaatin Notariaatti Oy LKV
Lämmittäjänkatu 4 A
FIN-00880 Helsinki
Tel:
Näytä puhelinnumero
+358 9 7745 100
Pyydä lisätietoa
