Vuokrataan toimistotilat - Helsinki
Kaisaniemenkatu 1 Ba, Helsinki, Suomi, Keskusta, 00100 Helsinki #10800345
Tämä kohde Helsingin ydinkeskustassa, vain muutaman askeleen päässä Rautatieasemasta ja keskellä maan kattavimpia palveluja, tarjoaa moderneja ja joustavia toimitiloja merkittävässä arvokiinteistössä.
Osoite
Kaisaniemenkatu 1 Ba, Helsinki, Suomi, 00100 Helsinki
Tilatyyppi
Toimistotilaa
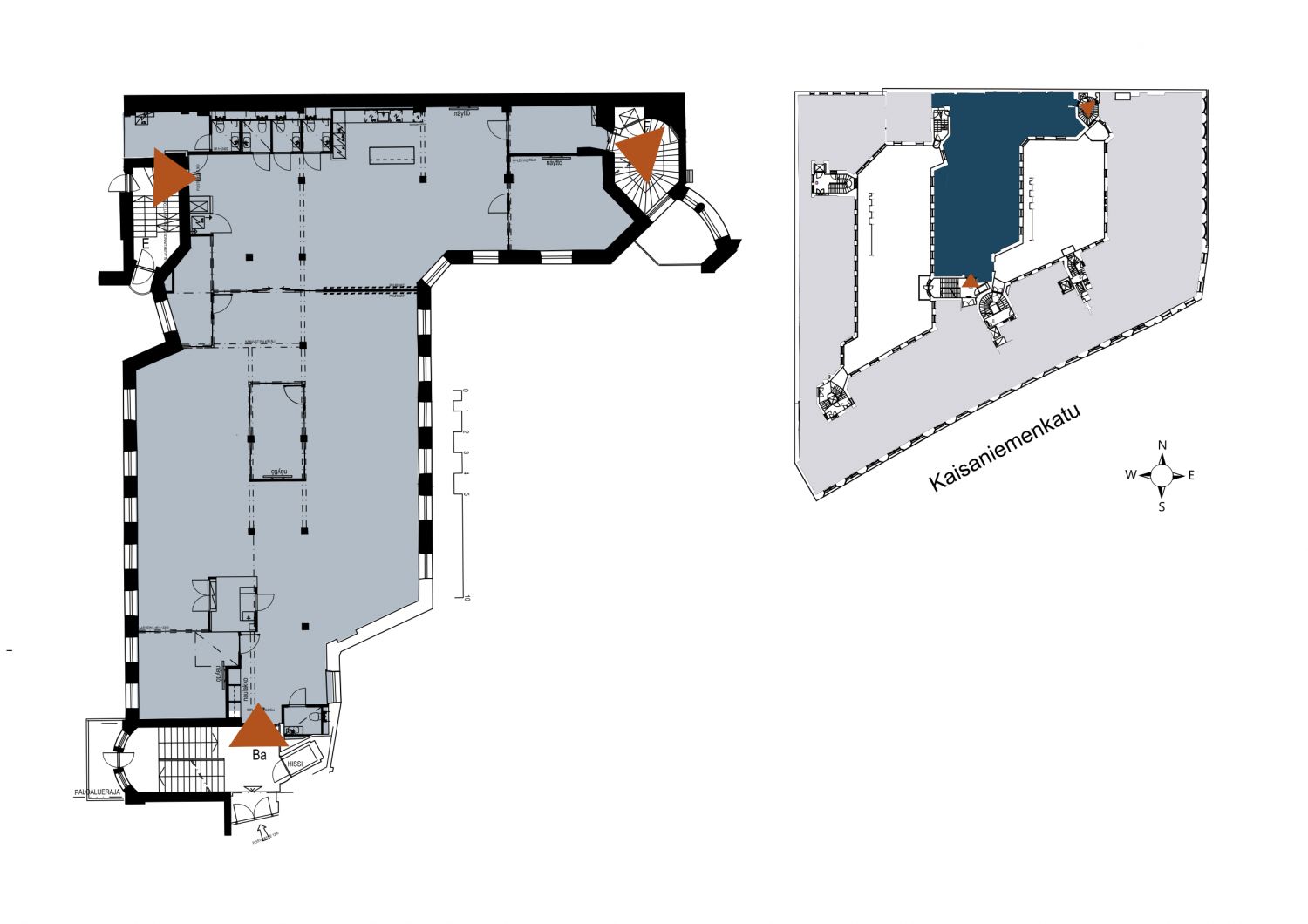
408 m2
Kiinteistö
Mikonkatu 13
Ympäristö
Metroasema: 200 m, Juna-asema: 500 m, Raitiovaunupysäkki: 100 m, Bussipysäkki: 100 m, Lentoasema: 19,2 km
Kulkuyhteydet
Valokuitu
Muuta
Vuokrattavana toimisto 408 m² – Vapaana avoin, moderni toimistotila erinomaisella sijainnilla keskellä Helsingin runsaita palveluita. Avoimen pohjaratkaisun ansiosta tila on muunneltavissa monenlaiseen käyttötarkoitukseen. Toimistoon sisältyy neljä eri kokoista neuvotelutilaa, jotka on erotettu muusta toimistotilasta kevyin ikkunaratkaisuin.
Kulttuurihistoriallisesti merkittävä Mikonkatu 13 on vakiinnuttanut satavuotisen historiansa aikana paikkansa yhtenä ydinkeskustan tunnetuimmista maamerkeistä. Kiinteistö sijaitsee vain muutaman askeleen päässä Helsingin päärautatieasemasta sekä lähimmistä metro-, raitiovaunu- sekä bussipysäkeistä. Tässä kiinteistössä olet aidosti lähellä kaikkia ydinkeskustan ravintoloita, kahviloita ja muita palveluita.
Tämä kohde Helsingin ydinkeskustassa, vain muutaman askeleen päässä Rautatieasemasta ja keskellä maan kattavimpia palveluja, tarjoaa moderneja ja joustavia toimitiloja merkittävässä arvokiinteistössä.
Kulttuurihistoriallisesti merkittävä Mikonkatu 13 on vakiinnuttanut satavuotisen historiansa aikana paikkansa yhtenä ydinkeskustan tunnetuimmista maamerkeistä. Kiinteistö sijaitsee vain muutaman askeleen päässä Helsingin päärautatieasemasta sekä lähimmistä metro-, raitiovaunu- sekä bussipysäkeistä. Tässä kiinteistössä olet aidosti lähellä kaikkia ydinkeskustan ravintoloita, kahviloita ja muita palveluita.
Tämä kohde Helsingin ydinkeskustassa, vain muutaman askeleen päässä Rautatieasemasta ja keskellä maan kattavimpia palveluja, tarjoaa moderneja ja joustavia toimitiloja merkittävässä arvokiinteistössä.
Vapautuu
Kysy
Rakennusvuosi
1931
Kerros
3
Energiatehokkuusluokka
G2007
Ota yhteyttä
LähiTapiola Kiinteistövarainhoito Oy
Heli Jalonen
Vuokrauspäällikkö
Näytä puhelinnumero
040 823 3490
Pyydä lisätietoa
