Vuokrataan toimistotilat, tuotantotilat - Espoo
Metsänpojankuja 1, Pohjois-Tapiola, 02130 Espoo #10800332
Uutta pääkonttoritason toimistotilaa Pohjois-Tapiolasta
Osoite
Metsänpojankuja 1, 02130 Espoo
Tilatyyppi
Toimistotilaa
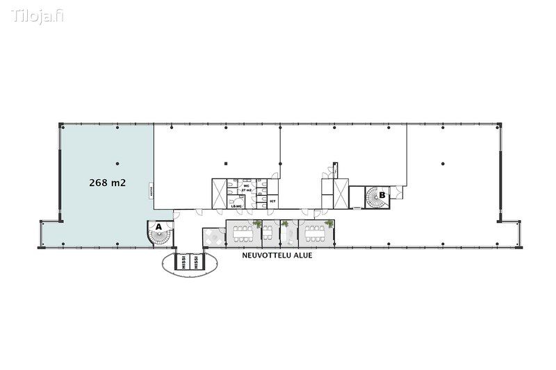
268 m2
Tuotantotilaa
268 m2
Yhteensä
268 m2
Pysäköinti
Hallissa
Muuta
Vuokrattavana monipuolinen ja muunneltava 268m² toimistotila Pohjois-Tapiolassa. Tila suunnitellaan vastaamaan yrityksenne yksilöllisiä tarpeita yhdessä talon oman sisustusarkkitehdin kanssa. Toimistotila sijaitsee täysin saneeratussa kiinteistössä, joka vastaa myös vaativimpien käyttäjien tarpeisiin.
MaarinPortti on pääkonttoritason toimitilakiinteistö, jossa yhdistyvät energiatehokkuus ja vastuullisuus. Tiloille haetaan LEED Platinum -sertifikaattia, joka on korkein ympäristöystävällisyyden tunnustus. Työskentely-ympäristö on suunniteltu tukemaan hyvinvointia, huomioiden muun muassa erinomaisen sisäilman laadun, valaistuksen ja akustiikan, jotta työpäivät olisivat mahdollisimman viihtyisiä ja tehokkaita.
Kiinteistössä on kattavat palvelut, kuten aulapalvelu, auditorio ja vuokrattavia neuvottelutiloja, jotka tukevat sujuvaa arkea. Laadukas ravintola ja läheinen ruokakauppa tarjoavat lisäarvoa vuokralaisille, kuten myös Tapiolan keskuksen ja kauppakeskus Ainoan monipuoliset palvelut noin 2km päässä. Pysäköintipaikkoja on hyvin saatavilla sekä hallissa että piha-alueella.
Sijainti Kehä I:n varrella on erinomainen, ja julkiset liikenneyhteydet ovat kätevästi muutaman minuutin kävelymatkan päässä, sillä bussi- ja Raidejokeri-pysäkit ovat läheisyydessä. Lisäksi metroasemalle (Aalto-Yliopisto) kävelee alle 15 min.
Tervetuloa tutustumaan, varaathan välittäjältä oman esittelyaikasi. Voit kysyä meiltä myös muita sopivia vaihtoehtoja, kauttamme löydät juuri Teidän tarpeisiinne sopivat tilat. Palvelumme on tilanhakijalle veloitukseton!
MaarinPortti on pääkonttoritason toimitilakiinteistö, jossa yhdistyvät energiatehokkuus ja vastuullisuus. Tiloille haetaan LEED Platinum -sertifikaattia, joka on korkein ympäristöystävällisyyden tunnustus. Työskentely-ympäristö on suunniteltu tukemaan hyvinvointia, huomioiden muun muassa erinomaisen sisäilman laadun, valaistuksen ja akustiikan, jotta työpäivät olisivat mahdollisimman viihtyisiä ja tehokkaita.
Kiinteistössä on kattavat palvelut, kuten aulapalvelu, auditorio ja vuokrattavia neuvottelutiloja, jotka tukevat sujuvaa arkea. Laadukas ravintola ja läheinen ruokakauppa tarjoavat lisäarvoa vuokralaisille, kuten myös Tapiolan keskuksen ja kauppakeskus Ainoan monipuoliset palvelut noin 2km päässä. Pysäköintipaikkoja on hyvin saatavilla sekä hallissa että piha-alueella.
Sijainti Kehä I:n varrella on erinomainen, ja julkiset liikenneyhteydet ovat kätevästi muutaman minuutin kävelymatkan päässä, sillä bussi- ja Raidejokeri-pysäkit ovat läheisyydessä. Lisäksi metroasemalle (Aalto-Yliopisto) kävelee alle 15 min.
Tervetuloa tutustumaan, varaathan välittäjältä oman esittelyaikasi. Voit kysyä meiltä myös muita sopivia vaihtoehtoja, kauttamme löydät juuri Teidän tarpeisiinne sopivat tilat. Palvelumme on tilanhakijalle veloitukseton!
Vapautuu
Kysy
Rakennusvuosi
1998
Ota yhteyttä
Tuloskiinteistöt Oy
Rikhardinkatu 2 B 5, 00130 Helsinki
Näytä puhelinnumero
(09) 6841 620
Otto Ahtola
Commercial Real Estate Advisor
Näytä puhelinnumero
+358 40 042 2830
Jorma Ryynänen
Commercial Real Estate Advisor LKV, LVV
Näytä puhelinnumero
+358 40 708 4064
Pyydä lisätietoa
