Vuokrataan toimistotilat - Helsinki
Vilhonkatu 5, Kluuvi, 00100 Helsinki #10800329
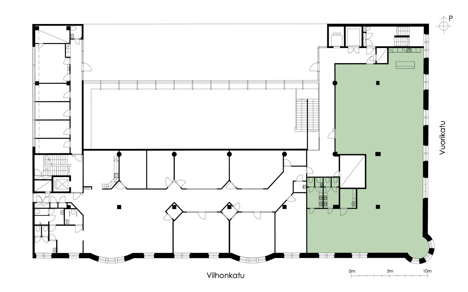
Toisen kerroksen toimistotila, jonka tilaratkaisut on toteutettavissa toiveiden mukaan. Tilaan on oma katutason sisäänkäynti Vuorikadun puolella.
Osoite
Vilhonkatu 5, 00100 Helsinki
Tilatyyppi
Toimistotilaa
309 m2
Pohjapiirros
Kiinteistö
Tyylikäs toimisto- ja liikekiinteistö Helsingin ydinkeskustassa. Kiinteistölle on erinomaiset julkisen liikenteen yhteydet ympäri pääkaupunkiseutua.
Vilhonkatu nimettiin vuonna 1909, ja sen varrella sijaitseva rakennus osoitteessa Vilhonkatu 5 valmistui vuonna 1921. Rakennus edustaa eurooppalaista kaupunkipalatsityyliä, jossa yhdistyvät wieniläisen barokin ja itämaisen arkkitehtuurin elementit. Nykyisin kiinteistö on modernisoitu liiketila, mutta sen juuret ulottuvat yli sadan vuoden taakse.
Kiinteistö sopii hyvin keskeistä sijaintia ja arvokasta miljöötä kaipaavalle yritykselle. Osassa tiloista on upeita, historiaa henkiviä yksityiskohtia, kuten uniikki kulmaneuvottelutila ja korkeat huoneet. Tilat on tekniikaltaan ja jäähdytykseltään saneerattu moderniin toimistokäyttöön ja ne ovat helposti muunneltavissa yrityskohtaisesti. Katutasossa on liiketiloja ja ylemmissä kerroksissa toimistotilaa.
Keskeinen sijainti takaa myös sen, että kaikki keskustan kaupalliset ja yrityspalvelut ovat lyhyen kävelymatkan etäisyydellä ja asiakasvirrat alueella ovat vertaansa vailla.
Kiinteistölle on myönnetty BREEAM In-Use Excellent -tason ympäristösertifikaatti ja se toimii 100 % päästöttömällä energialla, kuten tuulisähköllä ja uusiutuvalla kaukolämmöllä.
Vilhonkatu nimettiin vuonna 1909, ja sen varrella sijaitseva rakennus osoitteessa Vilhonkatu 5 valmistui vuonna 1921. Rakennus edustaa eurooppalaista kaupunkipalatsityyliä, jossa yhdistyvät wieniläisen barokin ja itämaisen arkkitehtuurin elementit. Nykyisin kiinteistö on modernisoitu liiketila, mutta sen juuret ulottuvat yli sadan vuoden taakse.
Kiinteistö sopii hyvin keskeistä sijaintia ja arvokasta miljöötä kaipaavalle yritykselle. Osassa tiloista on upeita, historiaa henkiviä yksityiskohtia, kuten uniikki kulmaneuvottelutila ja korkeat huoneet. Tilat on tekniikaltaan ja jäähdytykseltään saneerattu moderniin toimistokäyttöön ja ne ovat helposti muunneltavissa yrityskohtaisesti. Katutasossa on liiketiloja ja ylemmissä kerroksissa toimistotilaa.
Keskeinen sijainti takaa myös sen, että kaikki keskustan kaupalliset ja yrityspalvelut ovat lyhyen kävelymatkan etäisyydellä ja asiakasvirrat alueella ovat vertaansa vailla.
Kiinteistölle on myönnetty BREEAM In-Use Excellent -tason ympäristösertifikaatti ja se toimii 100 % päästöttömällä energialla, kuten tuulisähköllä ja uusiutuvalla kaukolämmöllä.
Sijainti
Kiinteistön vieressä sijaitsevat Rautatieasema ja Rautatientorin linja-autoasema takaavat erinomaisen julkisen liikenteen saavutettavuuden, jota täydentää korttelin alapuolella sijaitseva Helsingin yliopiston metroasema.
Pysäköinti
Autopaikat P-Eliel ja P-Kluuvi
Palvelut
Vastapäisessä Fennia-korttelissa on mittava määrä ravintoloita ja muita viihdepalveluita. Keskeinen sijainti ydinkeskustassa takaa sen, että kaikki kaupalliset ja yrityspalvelut sijaitsevat lyhyen kävelymatkan etäisyydellä.
Kiinteistöstä löytyy työmatkapyöräilijöille myös erilinen pyörävarasto.
Kiinteistöstä löytyy työmatkapyöräilijöille myös erilinen pyörävarasto.
Kulkuyhteydet
Lähimmälle bussipysäkille 200 m
Lähimmälle juna-asemalle 500 m
Lähimmälle metroasemalle 150 m
Lähimmälle raitiovaunupysäkille 80 m
Lentokentälle 30 min
Lähimmälle juna-asemalle 500 m
Lähimmälle metroasemalle 150 m
Lähimmälle raitiovaunupysäkille 80 m
Lentokentälle 30 min
Vapautuu
Kysy
Rakennusvuosi
1921
Kerros
2
Energiatehokkuusluokka
C2018 (toimistot) B2018 (liiketilat)
Ympäristöluokitus
BREEAM In-Use Excellent,GRESB Global Sector Leader 2025
Ota yhteyttä
Sponda Oy
Yrjönkatu 29C, 00100 Helsinki
Näytä puhelinnumero
020 43131
Sirpa Vuorimaa
Retail leasing
Näytä puhelinnumero
+358 40 7654 222
Laura Toponen
Senior Leasing Manager
Näytä puhelinnumero
+35850 413 4223
Sponda Oy
https://www.sponda.fiPyydä lisätietoa
