Vuokrataan toimistotilat - Helsinki
Pohjoisesplanadi 37, Keskusta, 00100 Helsinki #10800188
Arvotoimistotilaa Helsingin keskustassa
Osoite
Pohjoisesplanadi 37, 00100 Helsinki
Tilatyyppi
Toimistotilaa
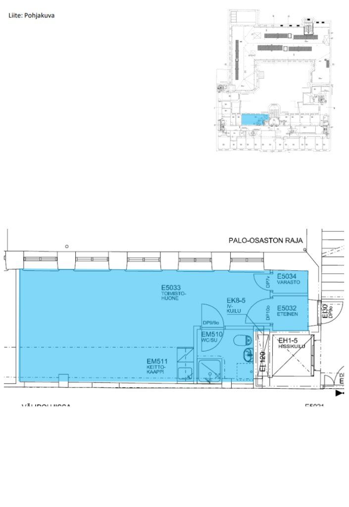
40 m2
Muuta
Vuokrataan toimistotilaa arvokiinteistössä Helsingin ydinkeskustassa, vuokrattava tila on 5. kerroksen 40,50 m2 toimistotila
Taidokkaasti saneeratussa vuonna 1920 valmistuneessa arvokiinteistössä on tasokasta toimisto- ja liiketilaa 7 kerrosta ja kellaritilat. Tila on jaettavissa toimistomoduulijaon mukaisiin tiloihin. Tiloissa on koneellinen ilmanvaihto ja jäähdytys.
Julkisen liikenteen palvelut ovat lyhyen kävelyn matkan päässä ja lähin pysäköintihalli sijaitsee Kluuvissa, sisäänajo Kaisaniemenkadulta ja Fabianinkadulta.
Tervetuloa tutustumaan, varaathan välittäjältä oman esittelyaikasi. Voit kysyä meiltä myös muita sopivia vaihtoehtoja, kauttamme löydät juuri teidän tarpeisiinne sopivat tilat. Palvelumme on tilanhakijalle veloitukseton!
Taidokkaasti saneeratussa vuonna 1920 valmistuneessa arvokiinteistössä on tasokasta toimisto- ja liiketilaa 7 kerrosta ja kellaritilat. Tila on jaettavissa toimistomoduulijaon mukaisiin tiloihin. Tiloissa on koneellinen ilmanvaihto ja jäähdytys.
Julkisen liikenteen palvelut ovat lyhyen kävelyn matkan päässä ja lähin pysäköintihalli sijaitsee Kluuvissa, sisäänajo Kaisaniemenkadulta ja Fabianinkadulta.
Tervetuloa tutustumaan, varaathan välittäjältä oman esittelyaikasi. Voit kysyä meiltä myös muita sopivia vaihtoehtoja, kauttamme löydät juuri teidän tarpeisiinne sopivat tilat. Palvelumme on tilanhakijalle veloitukseton!
Vapautuu
Kysy
Rakennusvuosi
1920
Kerros
5
Ota yhteyttä
Tuloskiinteistöt Oy
Rikhardinkatu 2 B 5, 00130 Helsinki
Näytä puhelinnumero
(09) 6841 620
Jorma Ryynänen
Commercial Real Estate Advisor LKV, LVV
Näytä puhelinnumero
+358 40 708 4064
Otto Ahtola
Commercial Real Estate Advisor
Näytä puhelinnumero
+358 40 042 2830
Pyydä lisätietoa
