Vuokrataan toimistotilat - Helsinki
Köydenpunojankatu 2, Kamppi, 00180 Helsinki #10800166
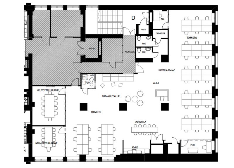
KÖYDENPUNOJANKATU 2 a D - toimistotila 294m2
Tämä 3.krs toimistotila tarjoaa avaruutta ja valoisuutta työskentelyyn. Tilassa on teollista henkeä, huonekorkeutta, suuret ikkunat kahteen suuntaan sekä koneellinen ilmanvaihto
Tilasta löytyy ison avotilan lisäksi, kolme neuvottelutilaa, pari puhelutilaa, avonainen design-keittiö ja kaksi wc-tilaa.
Tila on valmis käyttöönotettavaksi. Se soveltuu erinomaisesti niin tiimityöskentelyyn kuin luovaan työskentelyyn.
Tervetuloa tutustumaan tähän persoonalliseen tilaan, jossa teollinen eleganssi kohtaa toimivuuden!
Lisätiedot ja kohdenäytöt: p. 040 7070 321 / HeikkiKerros: 3
Kampin- ja Ruoholahden Metroasemat: 1 km
CRE PREMISES
Puh. Näytä puhelinnumero 020 7290 710
Vantaankoskentie 14
01670 VANTAA
