Vuokrataan toimistotilat, liiketilat, näyttelytilat, työtilat, muut tilat - Porvoo
Rihkamakatu 2, 06100 Porvoo #10799941
Tyylikäs ja moneen soveltuva toimitila ihanassa vanhassa kaupungissa Porvoon keskustassa! Vuokra 1999 €/kk + alv
Osoite
Rihkamakatu 2, 06100 Porvoo
Tilatyyppi
Toimistotilaa
95 m2
Liiketilaa
95 m2
Näyttelytilaa
95 m2
Työtilaa
95 m2
Muuta tilaa
95 m2
Yhteensä
95 m2
Virtuaaliesittely
Vuokra
1999 €/kk + alv
Vuokraan sisältyy sähkö, vesi, lämpö, alv, jäähdytys
Muuta
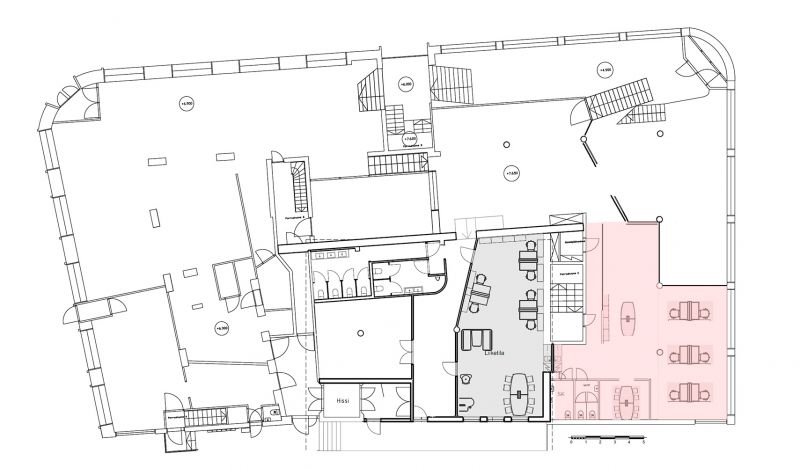
Vuokrattavana tyylikäs toimitila kauppatavaratalon toisesta kerroksesta. Tilaan kulku tavaratalon kautta tai rakennuksen takaoven kautta. Soveltuu toimistoksi tai yrityksen showroomiksi. Tila on pohjakuvassa punaisella merkitty alue ja se on yhteensä 95 m².
Valoisa, rauhallinen ja tyylikkäästi sisustettu tila, josta idylliset näkymät Porvoon vanhan kaupungin kävelykadulle. Tila soveltuisi erinomaisesti esim. sisustusalan showroomiksi tai muunlaisen yrityksen esittelytilaksi. Tilassa on tällä hetkellä yhteensä 4 tyylikästä työpistettä, neuvotteluhuone ja keittiötila sekä wc.
Tilassa koneellinen viilennys kesällä sekä langaton verkkoyhteys.
Paikoitustilaa löytyy aivan läheltä (maksullinen) tai 5 min kävelymatkan päästä (maksuttomia).
Kauppatavaratalon alakerrassa toimii tällä hetkellä sisustusliike ja ruokaravintola.
Hyvä toimitila/showroom ihanteellisella sijainnilla!
Kohdetiedot
Sijainti
Katuosoite: Rihkamakatu 2, 06100 Porvoo
Kaupunginosa: Keskusta
Ympäristö: Asuntoja, toimistoja, liikkeitä, ravintoloita, vanha kaupunki
rakennus/huoneisto
Pinta-alat: 95 m²
Huoneistoselitelmä: Toimistotila/showroom
Kunto, varusteet ja palvelut: Erittäin hieno toimistotila, keittiö, wc-tilat. Porvoon kaikki palvelut lähellä
Vapautuu: Heti vapaa
Pysäköinti: Maksulliset paikat lähellä ja maksuttomia paikkoja vähän pidemmällä
Vuokrahinta ja kulut
Kuukausivuokra: 1'999 €/kk + alv
Sähkö- ja vesimaksu: Sisältyy vuokraan
Lämmitys: Sisältyy vuokraan
Muut ehdot: Minimisopimuskausi 12 kk, vakuus 3 kk:n vuokraa vastaava summa, luottotietojen on oltava kunnossa
Valoisa, rauhallinen ja tyylikkäästi sisustettu tila, josta idylliset näkymät Porvoon vanhan kaupungin kävelykadulle. Tila soveltuisi erinomaisesti esim. sisustusalan showroomiksi tai muunlaisen yrityksen esittelytilaksi. Tilassa on tällä hetkellä yhteensä 4 tyylikästä työpistettä, neuvotteluhuone ja keittiötila sekä wc.
Tilassa koneellinen viilennys kesällä sekä langaton verkkoyhteys.
Paikoitustilaa löytyy aivan läheltä (maksullinen) tai 5 min kävelymatkan päästä (maksuttomia).
Kauppatavaratalon alakerrassa toimii tällä hetkellä sisustusliike ja ruokaravintola.
Hyvä toimitila/showroom ihanteellisella sijainnilla!
Kohdetiedot
Sijainti
Katuosoite: Rihkamakatu 2, 06100 Porvoo
Kaupunginosa: Keskusta
Ympäristö: Asuntoja, toimistoja, liikkeitä, ravintoloita, vanha kaupunki
rakennus/huoneisto
Pinta-alat: 95 m²
Huoneistoselitelmä: Toimistotila/showroom
Kunto, varusteet ja palvelut: Erittäin hieno toimistotila, keittiö, wc-tilat. Porvoon kaikki palvelut lähellä
Vapautuu: Heti vapaa
Pysäköinti: Maksulliset paikat lähellä ja maksuttomia paikkoja vähän pidemmällä
Vuokrahinta ja kulut
Kuukausivuokra: 1'999 €/kk + alv
Sähkö- ja vesimaksu: Sisältyy vuokraan
Lämmitys: Sisältyy vuokraan
Muut ehdot: Minimisopimuskausi 12 kk, vakuus 3 kk:n vuokraa vastaava summa, luottotietojen on oltava kunnossa
Vapautuu
Heti
Kerros
2 / 3
Näkyvällä paikalla
Hissi
Ota yhteyttä
Tilat.fi
KTM, LKV Antti Soivio
Näytä puhelinnumero
0400 446 553
OTM, LKV Riikka Tuominen
Näytä puhelinnumero
0400 551 790
KTM, LKV Maria-Sofia Puhakka
Näytä puhelinnumero
0400 150330
HTM, LKV Aleksandra Riki
Näytä puhelinnumero
0400 211288
LKV Tilat.fi Oy on toimitilojen välitykseen erikoistunut yritys.
http://www.tilat.fiPyydä lisätietoa
