Vuokrataan tuotantotilat - Helsinki
Muonamiehentie 12, 00390 Helsinki #10799862
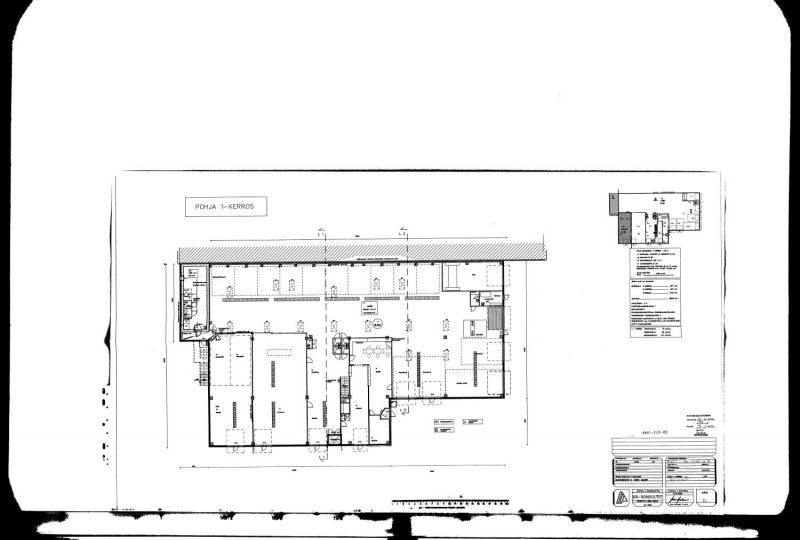
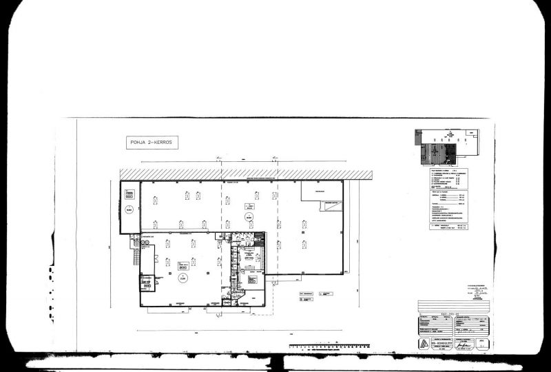
Siistiä vuonna 2001 valmistunutta autohuoltotilaa kahdessa kerroksessa. Tila on toiminut alusta asti autohuoltotilana ja nykyään tiloissa toimii Alppilan autohuolto kevääseen 2025 saakka. Tarkempi vapautuminen neuvoteltavissa/sovittavissa.
mika.tilli@rhg.fi, 040 7013005
Osoite
Muonamiehentie 12, 00390 Helsinki
Tilatyyppi
Tuotantotilaa
2100 m2
Vapautuu
Kysy
Huoneiden lukumäärä
1
Energiatehokkuusluokka
Ei lain edellyttämää energiatodistusta
Ota yhteyttä
RHG Real Estate
Hämeenkatu 2 B20, 20500 Turku
Näytä puhelinnumero
020 734 4020
Mika Tilli
Välittäjä, LKV
Näytä puhelinnumero
0407013005
Pyydä lisätietoa
