Vuokrataan toimistotilat - Espoo
Koskelontie 17 B, Koskelo, 02920 Espoo #10799746
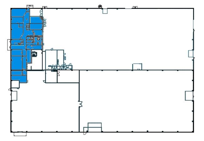
Vuokrattavana ensimmäisen kerroksen toimistotilaa.
Osoite
Koskelontie 17 B, 02920 Espoo
Tilatyyppi
Toimistotilaa
347 m2
Kiinteistö
Vuokrattavana ensimmäisen kerroksen toimistotilaa. Toimistossa on oma keittiö ja wc.
Sijainti
Koskelo, Espoo
Pysäköinti
Kiinteistön pihalla.
Palvelut
Lähialueen palvelut.
Kulkuyhteydet
-Bussi
-Oma auto
-Oma auto
Vapautuu
Heti
Kerros
1
Energiatehokkuusluokka
Ei lain edellyttämää energiatodistusta
Näkyvällä paikalla
Hissi
Ota yhteyttä
REALIUM OY LKV
Tammasaarenkatu 1, 00180 Helsinki
Vaihde:
Näytä puhelinnumero
010 326 346
Tuomo Mäkelä
tuomo.makela@realium.fi
p.
Näytä puhelinnumero
044 050 1158
Joel Keto
joel.keto@realium.fi
p.
Näytä puhelinnumero
045 317 0330
KAIKKI TILAVAIHTOEHDOT KERRALLA!
SOITA - MEILAA JA TILAA NÄYTTÖ!
Ilmainen palvelu tilanhakijoille.
Kartoitamme parhaat tilavaihtoehdot.
Kaikki kohteet eivät ole netissä.
Pyydä lisätietoa
