Vuokrataan toimistotilat - Helsinki
Kumpulantie 3, Vallila, 00520 Helsinki #10799668
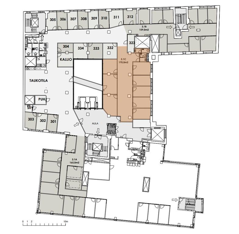
Vuokrattavana siistiä toimistotilaa Vallilassa.
Tämä 161 m² toimistotila sijaitsee kiinteistön 3. kerroksessa, Fabrik Studios -pientoimistoalueen vieressä. Keittiö-/lounge- ja wc-tilat ovat yhteiskäyttöiset pientoimistoalueen kanssa. Yhteisten alueiden siivous, aulapalvelu sekä kuntosalin käyttöoikeus sisältyvät vuokraan.
Kumpulantie 3 eli Fabrik on industrial-henkinen toimistokiinteistö, jonka toimitilat ovat tehokkaita, jäähdytettyjä ja muunneltavissa niin avo- kuin kombikonttoritiloiksi. Tämä takaa pääsyn hyvään työpistetehokkuuteen. Rakennuksessa on valokuitu ja näköalahissi. Kellarikerroksesta on saatavilla myös varastotilaa. Kiinteistössä oma parkkihalli ja sähköautojen latausmahdollisuus. Kerroksiin on tavarahissiyhteys, jonka kantavuus on 1500kg. Kiinteistössä on myös monipuoliset palvelut liiketoiminnan tueksi.
Kysy lisää numerosta 044 723 4700 tai info@bref.fi. Palvelumme on tilanhakijoille ilmainen.
Bureau Real Estate Finland Oy
Lars Sonckin kaari 16, 02600 Espoo
Näytä puhelinnumero
0447234700
Bureau Real Estate Finland Oy
https://www.bref.fi