Vuokrataan toimistotilat, liiketilat - Raisio
Lukkarlantie 2, Huhko, 21280 Raisio #10799625
Toimistotilaa hyvältä sijainnilta
Osoite
Lukkarlantie 2, 21280 Raisio
Tilatyyppi
Toimistotilaa
600 m2
Liiketilaa
600 m2
Yhteensä
600 m2
Muuta
Tarjotaan vuokralle jäähdytettyä toimistotilaa hyvien yhteyksien varrelta Raision Huhkosta.
Sijainti on erinomainen ja se on saavutettavissa julkisilla sekä omalla autolla erittäin helposti monesta suunnasta.
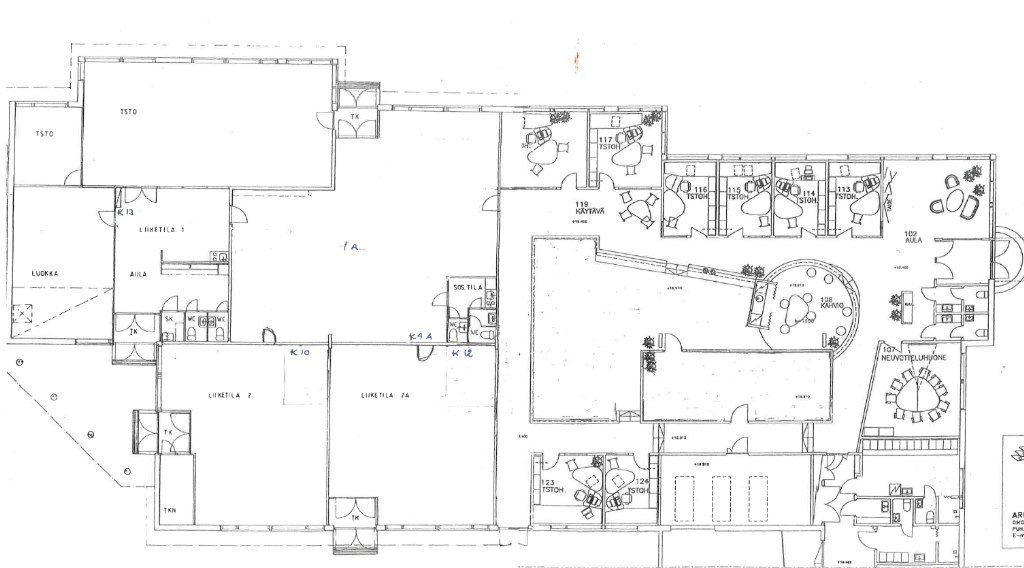
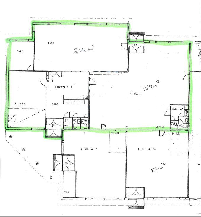
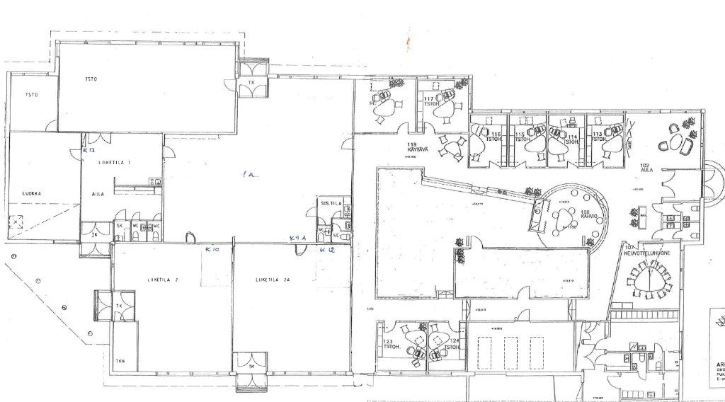
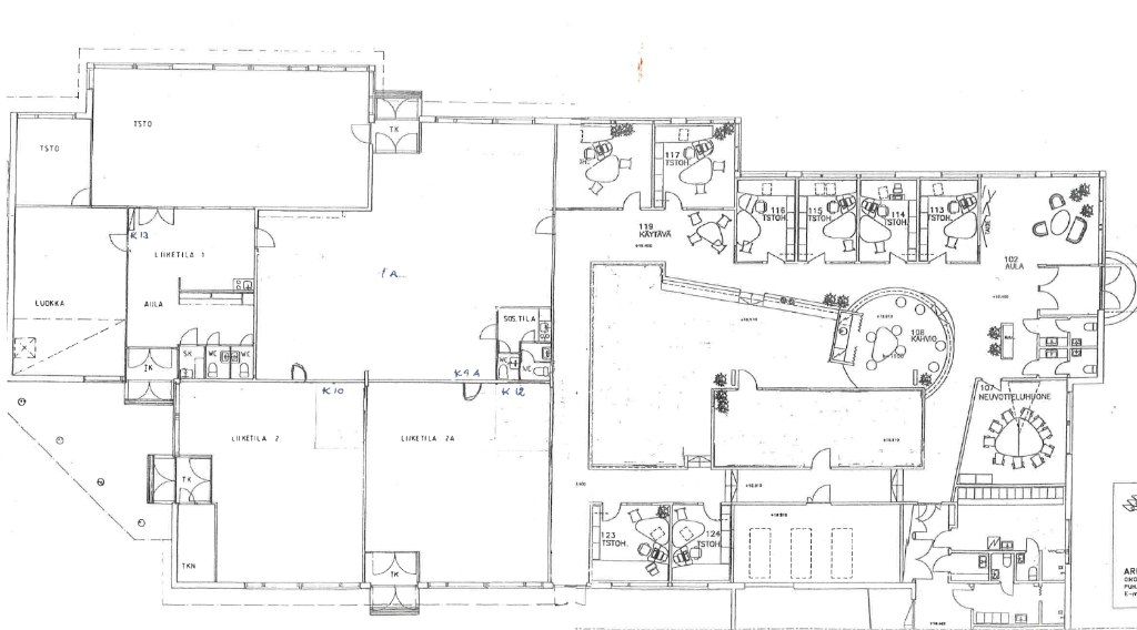
Tilat koostuvat suuremmista avotoimistotiloista sekä muutamasta toimistohuoneesta ja sosiaalitiloista. Huonejako on muokattavissa, jos tilaa halutaan jakaa eri tavalla.
Mahdollista vuokrata:
- n. 600m2 toimistotilaa, jossa kahdeksan huonetta, avotilaa, muutama neukkari, keittiö, pieni kuntosali sekä pukuhuoneet naisille ja miehille.
- mahdollista myös vuokrata kaksi n. 90m2:n liiketilaa erikseen tai yhdessä.
Tilat ovat pinnoiltaan siistit ja suuret ikkunat Satakunnantielle antavat mukavasti luonnonvaloa. Koneellinen ilmanvaihto ja viilennys tuovat lisämukavuutta käytettävyyteen.
Pihalla on parkkipaikkoja n.30kpl. Lisäksi ilmaista pysäköintitilaa löytyy lähettyviltä.
Tervetuloa tutustumaan, varaathan välittäjältä oman esittelyaikasi. Voit kysyä meiltä myös muita sopivia vaihtoehtoja, kauttamme löydät juuri Teidän tarpeisiinne sopivat tilat.
Palvelumme on tilanhakijalle veloitukseton!
Sijainti on erinomainen ja se on saavutettavissa julkisilla sekä omalla autolla erittäin helposti monesta suunnasta.
Tilat koostuvat suuremmista avotoimistotiloista sekä muutamasta toimistohuoneesta ja sosiaalitiloista. Huonejako on muokattavissa, jos tilaa halutaan jakaa eri tavalla.
Mahdollista vuokrata:
- n. 600m2 toimistotilaa, jossa kahdeksan huonetta, avotilaa, muutama neukkari, keittiö, pieni kuntosali sekä pukuhuoneet naisille ja miehille.
- mahdollista myös vuokrata kaksi n. 90m2:n liiketilaa erikseen tai yhdessä.
Tilat ovat pinnoiltaan siistit ja suuret ikkunat Satakunnantielle antavat mukavasti luonnonvaloa. Koneellinen ilmanvaihto ja viilennys tuovat lisämukavuutta käytettävyyteen.
Pihalla on parkkipaikkoja n.30kpl. Lisäksi ilmaista pysäköintitilaa löytyy lähettyviltä.
Tervetuloa tutustumaan, varaathan välittäjältä oman esittelyaikasi. Voit kysyä meiltä myös muita sopivia vaihtoehtoja, kauttamme löydät juuri Teidän tarpeisiinne sopivat tilat.
Palvelumme on tilanhakijalle veloitukseton!
Vapautuu
Kysy
Kerros
Katutaso
Ota yhteyttä
Tuloskiinteistöt Oy
Rikhardinkatu 2 B 5, 00130 Helsinki
Näytä puhelinnumero
(09) 6841 620
Karoliina Eklund
Leasing Support Specialist
Näytä puhelinnumero
+358 40 017 8999
Ritva Nuotio
Commercial Real Estate Advisor LKV, KED
Näytä puhelinnumero
+358 50 5261 744
Pyydä lisätietoa
