Vuokrataan toimistotilat - Espoo
Sinimäentie 8B, Mankkaa, 02630 Espoo #10799619
Modernia toimistotilaa hyvällä sijainnilla
Osoite
Sinimäentie 8B, 02630 Espoo
Tilatyyppi
Toimistotilaa
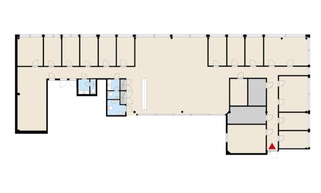
527 m2
Muuta
Vuokrattavana 527m2 monitoimitila, joka palvelee suurtakin yritystä. Toimistossa on niin avotilaa, kuin erikokoisia huoneita. Tilaa on mahdollista muokata tulevan vuokralaisen tarpeisiin.
Sinihelmi on vaikuttava toimistokohde Espoon Sinimäellä Mankkaalla, josta on hyvät liikenneyhteydet Helsinkiin ja Kehäteille. Tämä moderni ja viihtyisä kiinteistö tarjoaa monipuolisesti muunneltavaa ja valoisaa toimitilaa. Rakennus koostuu kuudesta kerroksesta, joista viisi on varattu toimitiloille ja ylin kerros vuokrattaville saunatiloille. Kiinteistön lasiseinät tarjoavat upeat näkymät rauhalliseen ja vehreään ympäristöön. Talon keskellä sijaitsee tyylikäs katettu valopiha.
Sinihelmiin on helppo saapua, sillä Kehä I ja Turuntie ovat aivan vieressä. Lähialueella on runsaasti kauppoja ja palveluita, ja kiinteistössä on oma lounasravintola. Rakennus lämpiää ekologisesti maalämmöllä, ja piha-alueella on runsaasti vuokrattavia pysäköintipaikkoja sekä vieraspaikkoja. Pihalta löytyy myös sähköauton latauspaikkoja.
Tervetuloa tutustumaan! Kysythän meiltä myös muita vaihtoehtoja, palvelumme on vuokralaiselle veloitukseton.
Sinihelmi on vaikuttava toimistokohde Espoon Sinimäellä Mankkaalla, josta on hyvät liikenneyhteydet Helsinkiin ja Kehäteille. Tämä moderni ja viihtyisä kiinteistö tarjoaa monipuolisesti muunneltavaa ja valoisaa toimitilaa. Rakennus koostuu kuudesta kerroksesta, joista viisi on varattu toimitiloille ja ylin kerros vuokrattaville saunatiloille. Kiinteistön lasiseinät tarjoavat upeat näkymät rauhalliseen ja vehreään ympäristöön. Talon keskellä sijaitsee tyylikäs katettu valopiha.
Sinihelmiin on helppo saapua, sillä Kehä I ja Turuntie ovat aivan vieressä. Lähialueella on runsaasti kauppoja ja palveluita, ja kiinteistössä on oma lounasravintola. Rakennus lämpiää ekologisesti maalämmöllä, ja piha-alueella on runsaasti vuokrattavia pysäköintipaikkoja sekä vieraspaikkoja. Pihalta löytyy myös sähköauton latauspaikkoja.
Tervetuloa tutustumaan! Kysythän meiltä myös muita vaihtoehtoja, palvelumme on vuokralaiselle veloitukseton.
Vapautuu
Kysy
Kerros
5
Ota yhteyttä
Tuloskiinteistöt Oy
Rikhardinkatu 2 B 5, 00130 Helsinki
Näytä puhelinnumero
(09) 6841 620
Otto Ahtola
Commercial Real Estate Advisor
Näytä puhelinnumero
+358 40 042 2830
Jorma Ryynänen
Commercial Real Estate Advisor LKV, LVV
Näytä puhelinnumero
+358 40 708 4064
Pyydä lisätietoa
