Vuokrataan toimistotilat, hoivatilat - Espoo
Niittyportti 4, Niittykumpu, 02200 Espoo #10799518
Niittyportti 4 tarjoaa viihtyisiä toimi- ja toimistotiloja esimerkiksi hyvinvointipalveluille tai muiden alojen yrityksille.
Osoite
Niittyportti 4, 02200 Espoo
Tilatyyppi
Toimistotilaa
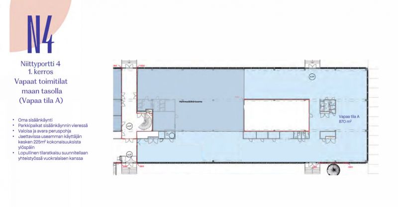
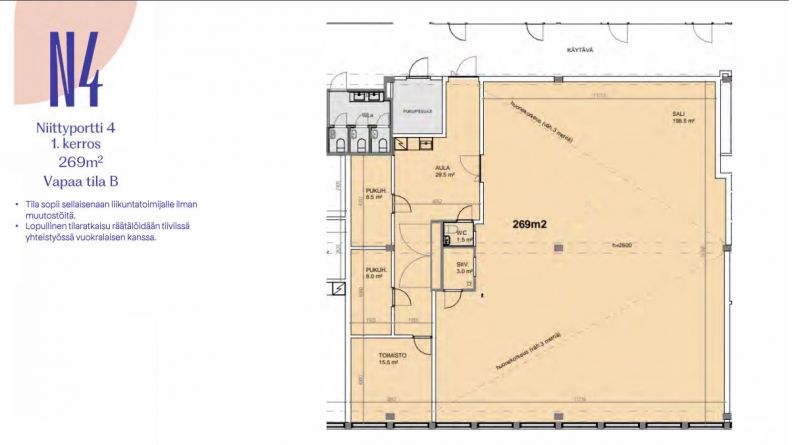
269 - 3600 m2
Hoivatilaa
269 - 3600 m2
Yhteensä
269 - 3600 m2
Kiinteistö
Rakennuksen perusosassa toimii Niittykummun perhekeskus, joka tarjoaa lapsille, nuorille ja perheille suunnattuja neuvola-, hyvinvointi-, terveys-, tuki- ja kuntoutuspalveluja.
Rakennuksen torniosassa taas on tarjolla tilaa muille toimijoille.
Rakennus peruskorjattiin syksyllä 2023 ympäristöarvot ja energiatehokkuus huomioiden. Perusparannustöiden kohteena olivat pääsisäänkaynti, julkisivu, piha, talotekniikka sekä sisätilat. Valoisat, avarat ja rauhalliset tilat on suunniteltu työntekijöiden tarpeet huomioiden. Kohde täyttää kansainvälisen LEED-ympäristösertifikaatin GOLD-tason.
Rakennuksen torniosassa taas on tarjolla tilaa muille toimijoille.
Rakennus peruskorjattiin syksyllä 2023 ympäristöarvot ja energiatehokkuus huomioiden. Perusparannustöiden kohteena olivat pääsisäänkaynti, julkisivu, piha, talotekniikka sekä sisätilat. Valoisat, avarat ja rauhalliset tilat on suunniteltu työntekijöiden tarpeet huomioiden. Kohde täyttää kansainvälisen LEED-ympäristösertifikaatin GOLD-tason.
Vapautuu
Heti
Energiatehokkuusluokka
Ei lain edellyttämää energiatodistusta
Katutasossa
Näkyvällä paikalla
Ota yhteyttä
Arvo Premises Oy
Joakim Kukkonen
Osakas, Toimitilavälittäjä
Näytä puhelinnumero
040 555 8106
Seppo Pakarinen
Osakas, Kiinteistönvälittäjä. LKV, YKV, AKA
Näytä puhelinnumero
040-703 8000
Pyydä lisätietoa
