Vuokrataan toimistotilat - Espoo
Nimismiehenpelto 6, Lommila, 02770 Espoo #10799477
Siistiä toimistotilaa Espoon Lommilasta
Osoite
Nimismiehenpelto 6, 02770 Espoo
Tilatyyppi
Toimistotilaa
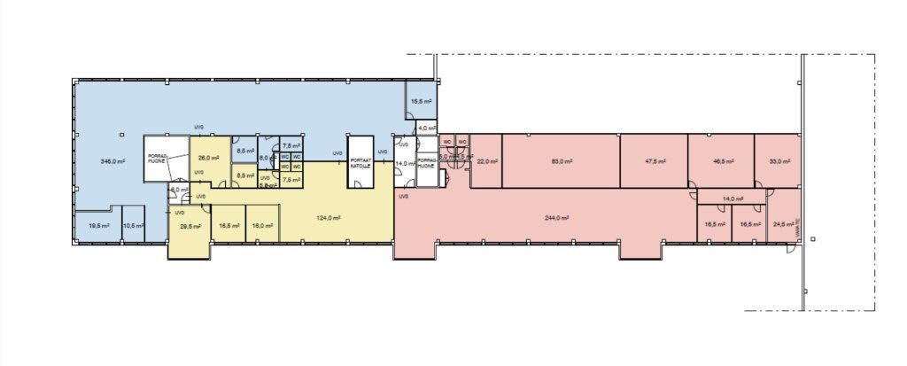
1280 m2
Muuta
Vuokrataan Espoon Lommilasta siistiä toimistotilaa. Vuokrattavana on 2. kerroksen 1280m2 tila. KOy Nimismiehenpelto 6-kiinteistöllä on erinomainen sijainti Espoon Lommilassa, Turunväylän ja kehä III:n välittömässä läheisyydessä.
Tiloja ollaan remontoimassa, joten nyt on mahdollista päästä vaikuttamaan materiaaleihin ja tilajakoon. Tilat on mahdollista jakaa kolmeen osaan siten, että pienin mahdollinen tilakoko on 300m2.
Kohteella on runsaasti parkkitilaa. Kohteella yhteiskäytössä sauna- ja kokoustilat kiinteistön kellarikerroksessa.
Sijainti on erinomainen Lommillassa Turunväylän varressa aivan Ikean lähellä. Lähin bussipysäkki n. 350 metrin päässä. HSL:n bussit Helsingin keskustasta n. 40 minuutin matka ja Espoon keskuksesta n. 10 minuutin matka.
Tällä hetkellä kiinteistössä toimivat muun muassa Hong Kong-tavaratalo, Wurth, Assa Abloy, sekä SPR:n konttimyymälä.
Kysy lisää tästä kohteesta. Voit kysyä meiltä muitakin juuri teille sopivia vaihtoehtoja - meidän kautta saat täysin teidän tarpeisiinne räätälöidyt tilat.
Palvelumme on tilanhakijalle veloitukseton!
Tiloja ollaan remontoimassa, joten nyt on mahdollista päästä vaikuttamaan materiaaleihin ja tilajakoon. Tilat on mahdollista jakaa kolmeen osaan siten, että pienin mahdollinen tilakoko on 300m2.
Kohteella on runsaasti parkkitilaa. Kohteella yhteiskäytössä sauna- ja kokoustilat kiinteistön kellarikerroksessa.
Sijainti on erinomainen Lommillassa Turunväylän varressa aivan Ikean lähellä. Lähin bussipysäkki n. 350 metrin päässä. HSL:n bussit Helsingin keskustasta n. 40 minuutin matka ja Espoon keskuksesta n. 10 minuutin matka.
Tällä hetkellä kiinteistössä toimivat muun muassa Hong Kong-tavaratalo, Wurth, Assa Abloy, sekä SPR:n konttimyymälä.
Kysy lisää tästä kohteesta. Voit kysyä meiltä muitakin juuri teille sopivia vaihtoehtoja - meidän kautta saat täysin teidän tarpeisiinne räätälöidyt tilat.
Palvelumme on tilanhakijalle veloitukseton!
Vapautuu
Kysy
Kerros
2
Ota yhteyttä
Tuloskiinteistöt Oy
Rikhardinkatu 2 B 5, 00130 Helsinki
Näytä puhelinnumero
(09) 6841 620
Nina Meyke
Commercial Real Estate Advisor
Näytä puhelinnumero
+358 50 466 1519
Jorma Ryynänen
Commercial Real Estate Advisor LKV, LVV
Näytä puhelinnumero
+358 40 708 4064
Pyydä lisätietoa
