Vuokrataan toimistotilat - Espoo
Tietäjäntie 2, Tapiola, 02130 Espoo #10799468
Siistiä toimistotilaa Espoon Tapiolassa
Osoite
Tietäjäntie 2, 02130 Espoo
Tilatyyppi
Toimistotilaa
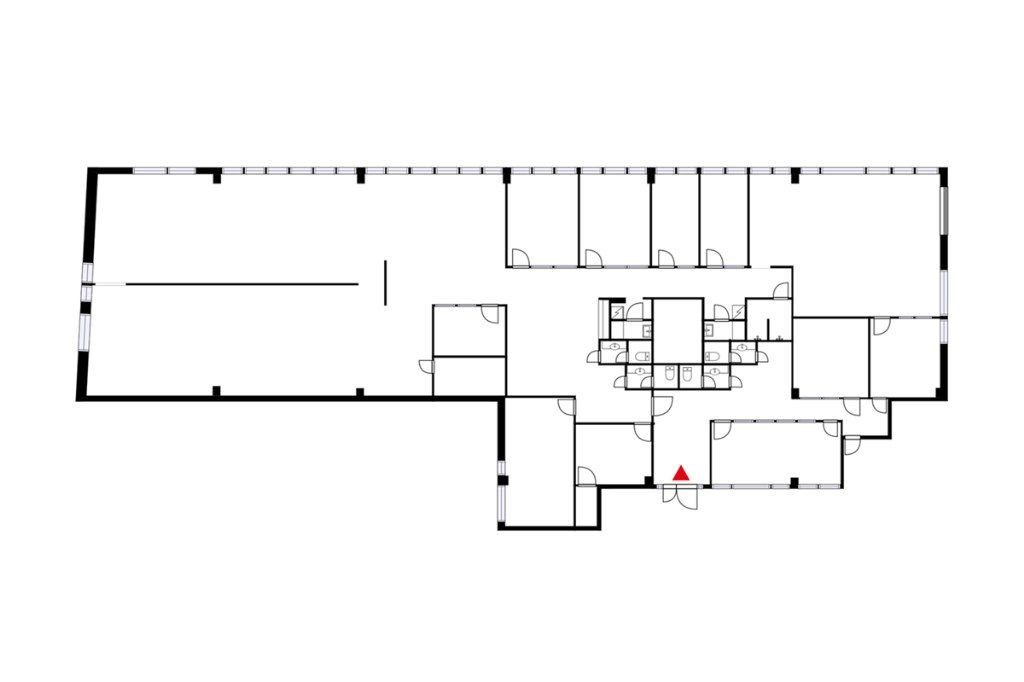
601 m2
Pysäköinti
Kyllä
Muuta
Siistiä ja reilunkokoista toimistotilaa Espoon Tapiolassa, vuokrattava tila on 1. kerroksen 601 m2 toimistotila.
Hyväkuntoinen toimistohuoneisto, jossa useita erikokoisia työhuoneita. Tilaan on joustavasti muokattavissa myös avotilaa. Tapiolan palvelut kävelyetäisyydellä. Tavarantuonti/huoltokulku tilaan on mahdollinen etupihalta pääoven vierestä.
Erinomainen sijainti aivan Kehä 1 varrella, oman auton käyttäjiä palvelee pysäköintipaikat sekä autohallissa että ulkopaikoituksessa.
Kysy lisää tästä kohteesta. Voit kysyä meiltä muitakin juuri teille sopivia vaihtoehtoja - meidän kautta saat täysin teidän tarpeisiinne räätälöidyt tilat. Palvelumme on tilanhakijalle veloitukseton!
Hyväkuntoinen toimistohuoneisto, jossa useita erikokoisia työhuoneita. Tilaan on joustavasti muokattavissa myös avotilaa. Tapiolan palvelut kävelyetäisyydellä. Tavarantuonti/huoltokulku tilaan on mahdollinen etupihalta pääoven vierestä.
Erinomainen sijainti aivan Kehä 1 varrella, oman auton käyttäjiä palvelee pysäköintipaikat sekä autohallissa että ulkopaikoituksessa.
Kysy lisää tästä kohteesta. Voit kysyä meiltä muitakin juuri teille sopivia vaihtoehtoja - meidän kautta saat täysin teidän tarpeisiinne räätälöidyt tilat. Palvelumme on tilanhakijalle veloitukseton!
Vapautuu
Kysy
Kerros
1
Ota yhteyttä
Tuloskiinteistöt Oy
Rikhardinkatu 2 B 5, 00130 Helsinki
Näytä puhelinnumero
(09) 6841 620
Nina Meyke
Commercial Real Estate Advisor
Näytä puhelinnumero
+358 50 466 1519
Otto Ahtola
Commercial Real Estate Advisor
Näytä puhelinnumero
+358 40 042 2830
Pyydä lisätietoa
