Vuokrataan toimistotilat - Helsinki
Osmontie 38, Käpylä, 00610 Helsinki #10799381
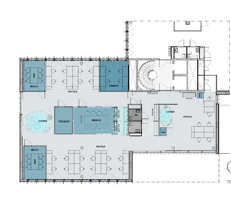
Vuokrataan hyväkuntoinen ja valoisa toimistotila Käpylästä. Avarassa ja viihtyisässä toimistossa on avotilaa, neuvotteluhuoneita, sekä keittiö ja lounge-alue. Tilaa on mahdollista muokata seuraavan vuokralaisen toiveiden ja tarpeiden mukaan.
Osmontie 38 kiinteistö sijaitsee loistavien kulkuyhteyksien varrella aivan Tuusulanväylän ja Käpylän juna-aseman vieressä. Kellarikerroksesta löytyvät hyvät pukuhuoneet ja suihkutilat työmatkaliikkujille. Rakennus on LEED Gold -ympäristösertifioitu.
Lisätietoja soita 020 730 4530 tai info@repoint.fi. Palvelumme on tilanhakijalle ilmainen.
Repoint Toimitilat Oy
Itälahdenkatu 22 B, 00210 Helsinki
Näytä puhelinnumero
020 730 4530
Lisätietoja soita Näytä puhelinnumero 020 730 4530 tai info@repoint.fi
https://repoint.fi/