Vuokrataan toimistotilat - Helsinki
Osmontie 38, Käpylä, 00610 Helsinki #10799380
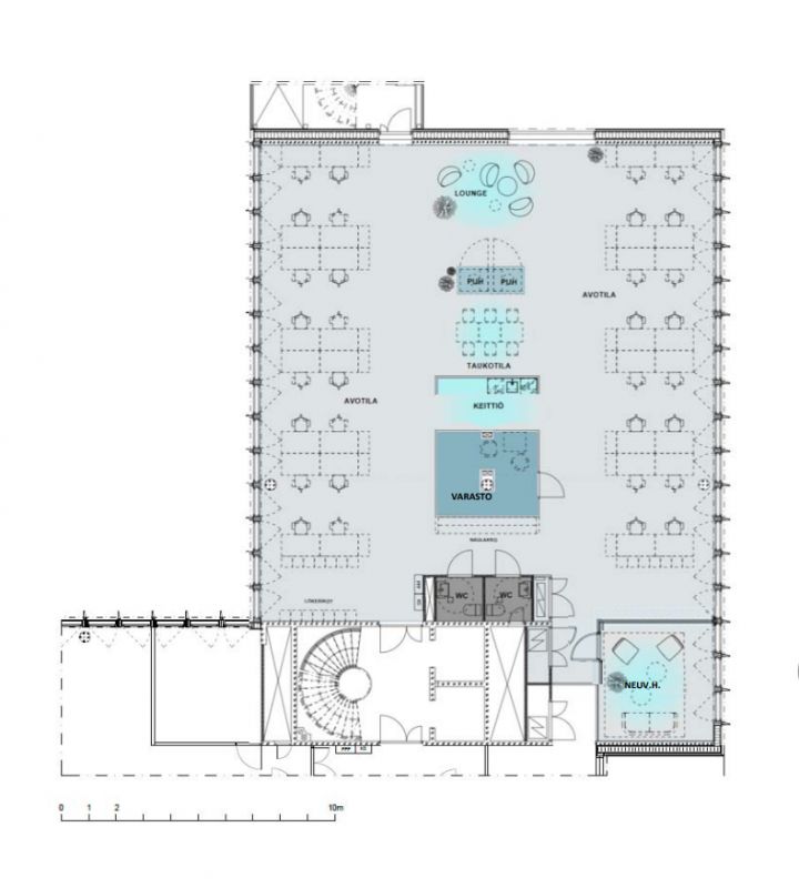
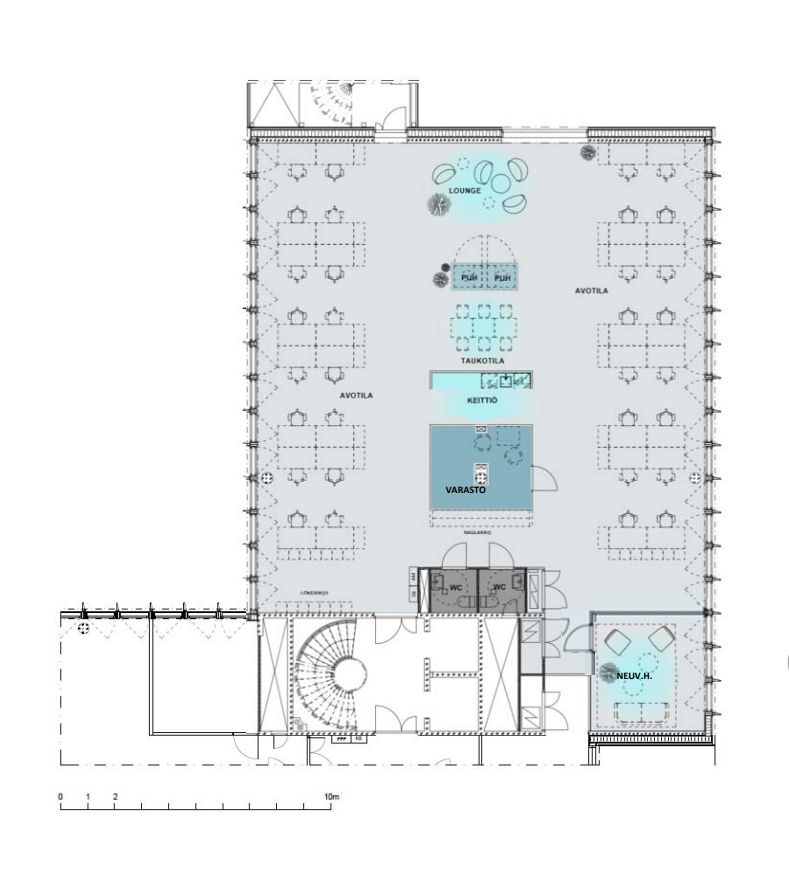
Vuokrataan avara ja valoisa toimistotila Käpylästä. Toimistossa on avotilaa, varasto ja yksi neuvotteluhuone, sekä keittiö ja wc-tilat. Tilaan on mahdollista rakentaa muutama työhuone tarvittaessa.
Osmontie 38 kiinteistö sijaitsee loistavien kulkuyhteyksien varrella aivan Tuusulanväylän ja Käpylän juna-aseman vieressä. Kellarikerroksesta löytyvät hyvät pukuhuoneet ja suihkutilat työmatkaliikkujille. Rakennus on LEED Gold -ympäristösertifioitu.
Lisätietoja soita 020 730 4530 tai info@repoint.fi. Palvelumme on tilanhakijalle ilmainen.
Repoint Toimitilat Oy
Itälahdenkatu 22 B, 00210 Helsinki
Näytä puhelinnumero
020 730 4530
Lisätietoja soita Näytä puhelinnumero 020 730 4530 tai info@repoint.fi
https://repoint.fi/