Vuokrataan toimistotilat - Helsinki
Työpajankatu 13, Kalasatama, 00580 Helsinki #10799356
Toimistotilaa kalasataman huippupaikalta.
Osoite
Työpajankatu 13, 00580 Helsinki
Tilatyyppi
Toimistotilaa
469 m2
Virtuaaliesittely
Kiinteistö
Työpaja on uuden ajan työpaikka, jossa modernit toimitilat, monipuoliset palvelut ja erinomainen sijainti yhdistyvät poikkeukselliseksi toimitilakokonaisuudeksi. Suunnittelussa on panostettu muunneltavuuteen, viihtyisyyteen, tehokkuuteen ja laatuun.
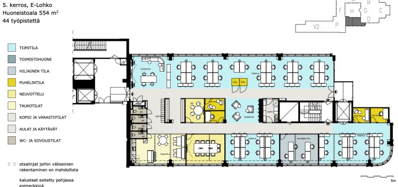
Toimistotila sijaitsee kiinteistön 4 kerroksessa. Tilassa on nykyjaolla:
- avotilaa
- 2 kpl tiimitilaa
- hiljainen tila
- 2 kpl toimisto/neuvotteluhuone
- 4 kpl puhelin/teams huoneita
- taukotila ja avokeittiö
- wc-tilat
Vuokralaisten yhteiskäytössä olevat neuvottelutilat, auditorio, kuntosali, liikuntatila ja ravintolat on suunniteltu tämän päivän työntekijää ajatellen.
Toimistotila sijaitsee kiinteistön 4 kerroksessa. Tilassa on nykyjaolla:
- avotilaa
- 2 kpl tiimitilaa
- hiljainen tila
- 2 kpl toimisto/neuvotteluhuone
- 4 kpl puhelin/teams huoneita
- taukotila ja avokeittiö
- wc-tilat
Vuokralaisten yhteiskäytössä olevat neuvottelutilat, auditorio, kuntosali, liikuntatila ja ravintolat on suunniteltu tämän päivän työntekijää ajatellen.
Sijainti
Keskustaan matkustaa metrolla muutamassa minuutissa ja Espoon Matinkylään alle puolessa tunnissa. Sijainti ja olosuhteet kannustavat myös työmatkapyöräilyyn, jota varten on oma lukittu parkkitila ja uusitut sosiaalitilat.
Pysäköinti
Kiinteistöllä on runsaasti autopaikkoja, joista osa on lämpimässä autohallissa, osa katetussa ulkotilassa tai pihalla. Sähköautojen latauspisteet lisätään perusparannuksen yhteydessä.
Palvelut
Auditorio
Aulapalvelut
Edustustilat
Kuntosali
Lounasravintola
Sosiaalitilat
Vuokrattavat neuvottelutilat
Aulapalvelut
Edustustilat
Kuntosali
Lounasravintola
Sosiaalitilat
Vuokrattavat neuvottelutilat
Kulkuyhteydet
Bussipysäkki kiinteistön edessä
Metro 100 m
Metro 100 m
Muuta
Katso neuvottelumaailman virtuaaliesittely alta olevasta linkistä.
Vapautuu
Heti
Näkyvällä paikalla
Ota yhteyttä
Comreal Oy LKV
Joonas Nilsson
Näytä puhelinnumero
044 328 3425
Läkkisepänkuja 6, 00620 Helsinki
Comreal on valtakunnallinen, asiantunteva ja aktiivinen kiinteistöalan kumppani, joka palvelee sekä kiinteistönomistajia että toimitilojen käyttäjiä. Toimintamme ydin on yksinkertainen: tarjota erinomaista palvelua kaikille.
Pyydä lisätietoa
