Videoesittely
Vuokrataan toimistotilat - Helsinki
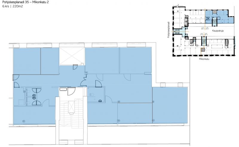
Mikonkatu 2, Keskusta, 00100 Helsinki #10799347
Ydinkeskustan ullakkotoimistotila joka rakennetaan uudelle vuokaraiselle!
Osoite
Mikonkatu 2, 00100 Helsinki
Tilatyyppi
Toimistotilaa
224 m2
Virtuaaliesittely
Kiinteistö
Gaselli-korttelin Eteläpäädyn kulmassa oleva, kuudennen kerroksen toimistotila loistavalla paikalla Helsingin ydinkeskustassa.
Tässä K.A. Wreden suunnittelemassa ja vuonna 1888 valmistuneessa arvokiinteistössä tehdyt perusparannustyöt on toteutettu kiinteistön arkkitehtuuria ja arvokasta historiaa kunnioittaen.
Tämä toimistotila on purettu betonille ja näin ollen se rakennetaan täysin uudelle vuokralaiselle. Vuokralainen saa vaikuttaa tilaratkaisuun, materiaaleihin ja varustukseen. Tila koostuu kahdesta huoneesta. Tilassa o paljon ikkunapinta-alaa joten se on täynnä valoa! Tila voidaan toteuttaa vaativankin vuokralaisen tarpeisiin.
Toimisto sijaitsee kiinteistön ylimmässä kerroksessa ja on kerroksen ainoa tila. Tilaan on hissi, että rappuyhteys. Sisäänkäynti joko Pohjoisesplanadi 35 tai Mikonkatu 2 posttikongista.
Toimiston ikkunoista upeat näköalat Helsingin keskustan kattojen yli sekä Mummotunneliin.
Tilassa on koneellinen ilmanvaihto ja jäähdytys.
Tässä K.A. Wreden suunnittelemassa ja vuonna 1888 valmistuneessa arvokiinteistössä tehdyt perusparannustyöt on toteutettu kiinteistön arkkitehtuuria ja arvokasta historiaa kunnioittaen.
Tämä toimistotila on purettu betonille ja näin ollen se rakennetaan täysin uudelle vuokralaiselle. Vuokralainen saa vaikuttaa tilaratkaisuun, materiaaleihin ja varustukseen. Tila koostuu kahdesta huoneesta. Tilassa o paljon ikkunapinta-alaa joten se on täynnä valoa! Tila voidaan toteuttaa vaativankin vuokralaisen tarpeisiin.
Toimisto sijaitsee kiinteistön ylimmässä kerroksessa ja on kerroksen ainoa tila. Tilaan on hissi, että rappuyhteys. Sisäänkäynti joko Pohjoisesplanadi 35 tai Mikonkatu 2 posttikongista.
Toimiston ikkunoista upeat näköalat Helsingin keskustan kattojen yli sekä Mummotunneliin.
Tilassa on koneellinen ilmanvaihto ja jäähdytys.
Sijainti
Helsingin ydinkeskustassa viihtyisän Esplanadin puistokadun varrella.
Pysäköinti
Lähin autoilijoita palveleva pysäköintihalli sijaitsee Kluuvissa, sisäänajo Kaisaniemestä tai Fabianinkadulta.
Palvelut
Kaikki keskustan lukuiset palevlut on vain kivenheiton päässä.
Kulkuyhteydet
Kaikki julkisen liikenteen yhteydet ovat vain lyhyen kävelymatkan päässä.
Muuta
Tutustu tiloihin kätevästi 3D virtual kierroksen avulla ja pääset kiertämään tilat kätevästi ennen varsinaista esittelyä ja pääset tutustumaan pohjakuvaan helposti.
Vapautuu
Heti
Energiatehokkuusluokka
Ei lain edellyttämää energiatodistusta
Näkyvällä paikalla
Ota yhteyttä
Comreal Oy LKV
Joonas Nilsson
Näytä puhelinnumero
044 328 3425
Läkkisepänkuja 6, 00620 Helsinki
Comreal on valtakunnallinen, asiantunteva ja aktiivinen kiinteistöalan kumppani, joka palvelee sekä kiinteistönomistajia että toimitilojen käyttäjiä. Toimintamme ydin on yksinkertainen: tarjota erinomaista palvelua kaikille.
Pyydä lisätietoa
