Vuokrataan - Helsinki
Mikonkatu 4, Kluuvi, 00100 Helsinki #10799276
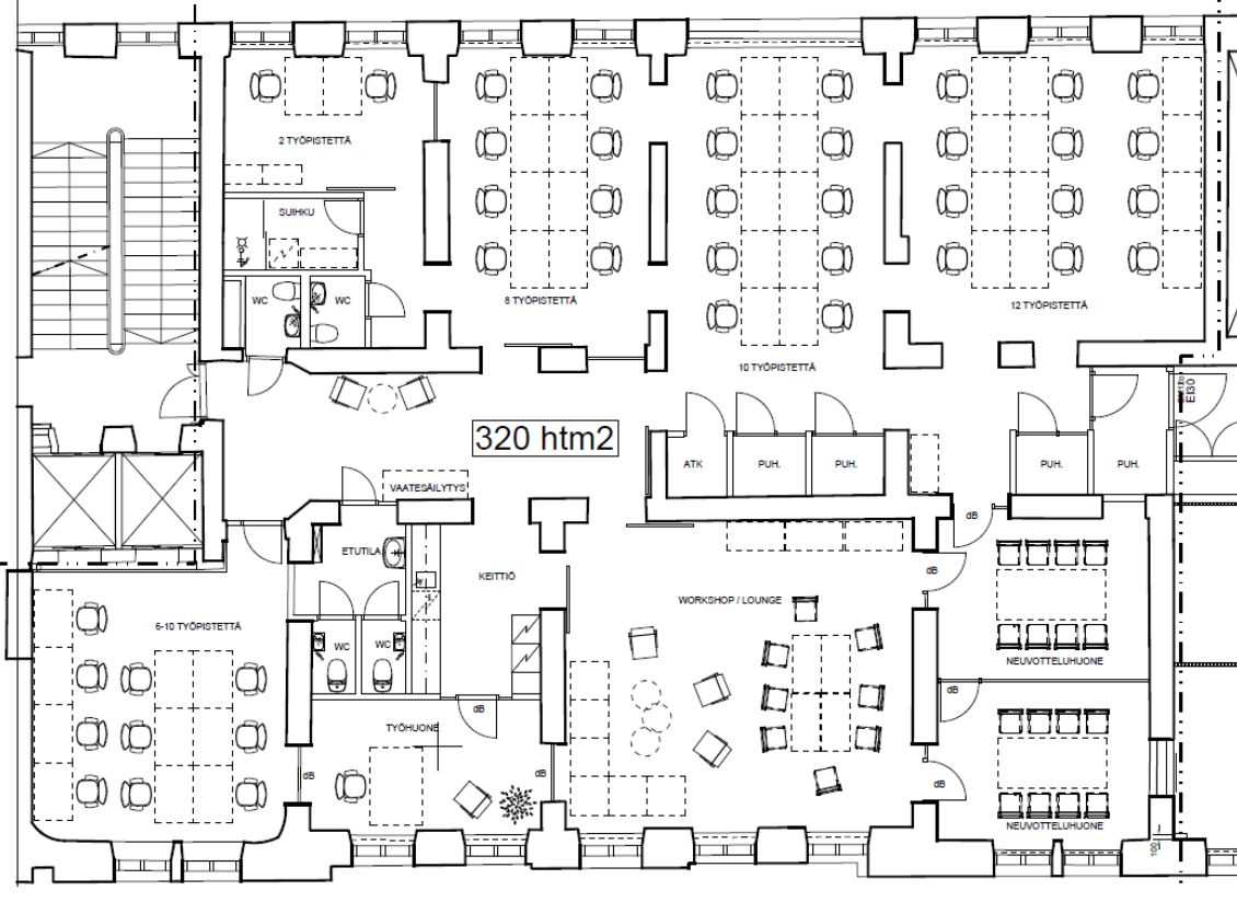
Vuokrattavana näyttävä, korkea ja valoisa toimisto ( 320 m2) ydinkeskustasta historiallisesti arvokkaasta Gaselli-korttelista. Toimisto sijaitsee Aleksanterinkadun ja Mikonkadun kulmassa sijaitsevan kiinteistön 3.kerroksessa.
Osoite
Mikonkatu 4, 00100 Helsinki
Vapautuu
Kysy
Huoneiden lukumäärä
1
Energiatehokkuusluokka
Ei lain edellyttämää energiatodistusta
Ota yhteyttä
RHG Real Estate
Hämeenkatu 2 B20, 20500 Turku
Näytä puhelinnumero
020 734 4020
Heli Reinberg
Näytä puhelinnumero
040 647 4900
Pyydä lisätietoa
