Vuokrataan toimistotilat - Lahti
Vuorikatu 35, Keskusta, 15100 Lahti #10799146
toimistotilaa Lahden keskustasta
Osoite
Vuorikatu 35, 15100 Lahti
Tilatyyppi
Toimistotilaa
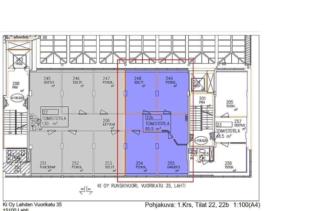
85 m2
Muuta
Vuokrataan erinomaisella sijainnilla toimistotilaa lahden keskustasta, vuokrattava tila on 2. kerroksen 85,50 m² toimistotila.
Kiinteistö Lahden Vuorikatu 35 sijainti on erinomainen aivan kaupungin keskustassa kaikkien palveluiden äärellä. Lahden Rautatieasema ja Matkakeskus on vain 5min / 450m kävelymatkan päässä.
Tervetuloa tutustumaan, varaathan välittäjältä oman esittelyaikasi. Voit kysyä meiltä myös muita sopivia vaihtoehtoja, kauttamme löydät juuri teidän tarpeisiinne sopivat tilat. Palvelumme on tilanhakijalle veloitukseton!
Kiinteistö Lahden Vuorikatu 35 sijainti on erinomainen aivan kaupungin keskustassa kaikkien palveluiden äärellä. Lahden Rautatieasema ja Matkakeskus on vain 5min / 450m kävelymatkan päässä.
Tervetuloa tutustumaan, varaathan välittäjältä oman esittelyaikasi. Voit kysyä meiltä myös muita sopivia vaihtoehtoja, kauttamme löydät juuri teidän tarpeisiinne sopivat tilat. Palvelumme on tilanhakijalle veloitukseton!
Vapautuu
Kysy
Kerros
2
Ota yhteyttä
Tuloskiinteistöt Oy
Rikhardinkatu 2 B 5, 00130 Helsinki
Näytä puhelinnumero
(09) 6841 620
Jorma Ryynänen
Commercial Real Estate Advisor LKV, LVV
Näytä puhelinnumero
+358 40 708 4064
Pyydä lisätietoa
