Vuokrataan toimistotilat - Helsinki
Ruosilantie 18, Konala, 00390 Helsinki #10799143
Siistiä toimistotilaa Konalasta
Osoite
Ruosilantie 18, 00390 Helsinki
Tilatyyppi
Toimistotilaa
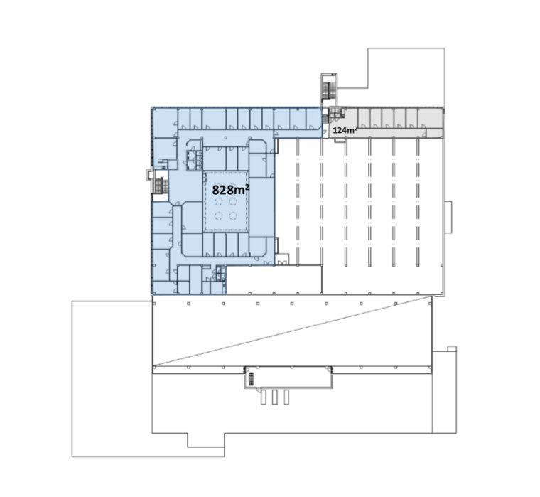
1000 m2
Pysäköinti
Kyllä
Muuta
Vuokrataan siistiä ja erinomaisella sijainnilla olevaa toimistotilaa Konalassa,
vuokrattava tila on 3. kerroksen 1000m2 toimistotila.
Kiinteistö sijaitsee erinomaisten kulkuyhteyksien Vihdintien varrella, josta on nopeat yhteydet julkisilla liikennevälineillä helsingin keskustaan. Oman auton käyttäjiä palvelee pihassa olevat autopaikat.
Kiinteistö on rakennettu vuonna 1973 ja saneerattu vuonna 2001. Kiinteistöön on avattu uusi lounasravintola, joka palvelee kiinteistön vuokralaisia lounasaikaan.
Kiinteistöstä löytyy toimistotilan lisäksi varastotilaa 300 - 1122m2, korkeuden ollessa 6,5 - 12,5m.
Tervetuloa tutustumaan, varaathan välittäjältä oman esittelyaikasi. Voit kysyä meiltä myös muita sopivia vaihtoehtoja, kauttamme löydät juuri teidän tarpeisiinne sopivat tilat. Palvelumme on tilanhakijalle veloitukseton!
vuokrattava tila on 3. kerroksen 1000m2 toimistotila.
Kiinteistö sijaitsee erinomaisten kulkuyhteyksien Vihdintien varrella, josta on nopeat yhteydet julkisilla liikennevälineillä helsingin keskustaan. Oman auton käyttäjiä palvelee pihassa olevat autopaikat.
Kiinteistö on rakennettu vuonna 1973 ja saneerattu vuonna 2001. Kiinteistöön on avattu uusi lounasravintola, joka palvelee kiinteistön vuokralaisia lounasaikaan.
Kiinteistöstä löytyy toimistotilan lisäksi varastotilaa 300 - 1122m2, korkeuden ollessa 6,5 - 12,5m.
Tervetuloa tutustumaan, varaathan välittäjältä oman esittelyaikasi. Voit kysyä meiltä myös muita sopivia vaihtoehtoja, kauttamme löydät juuri teidän tarpeisiinne sopivat tilat. Palvelumme on tilanhakijalle veloitukseton!
Vapautuu
Kysy
Rakennusvuosi
1973
Kerros
3
Ota yhteyttä
Tuloskiinteistöt Oy
Rikhardinkatu 2 B 5, 00130 Helsinki
Näytä puhelinnumero
(09) 6841 620
Nina Meyke
Commercial Real Estate Advisor
Näytä puhelinnumero
+358 50 466 1519
Jorma Ryynänen
Commercial Real Estate Advisor LKV, LVV
Näytä puhelinnumero
+358 40 708 4064
Pyydä lisätietoa
