Vuokrataan varastotilat - Lahti
Aleksanterinkatu 25, Keskusta, 15140 Lahti #10798906
Varastotilaa Lahden keskustassa
Osoite
Aleksanterinkatu 25, 15140 Lahti
Tilatyyppi
Varastotilaa
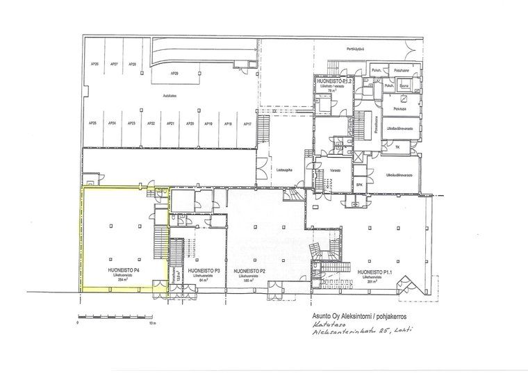
431 m2
Muuta
Vuokrataan Lahden ydinkeskustasta kellarikerroksen 431 m² varastotila.
Varastotila sijaitsee Kauppakeskus Trioa vastapäätä ja kauppatorille on vain muutaman minuutin kävelymatka.
Pysäköintipaikat lähistöltä olevista pysäköintihalleista ja kauppakeskuksesta.
Varastotilan yläkerrassa on 254 m² liiketila.
Tervetuloa tutustumaan, varaathan välittäjältä oman esittelyaikasi. Voit kysyä meiltä myös muita sopivia vaihtoehtoja, kauttamme löydät juuri teidän tarpeisiinne sopivat tilat. Palvelumme on tilanhakijalle veloitukseton!
Varastotila sijaitsee Kauppakeskus Trioa vastapäätä ja kauppatorille on vain muutaman minuutin kävelymatka.
Pysäköintipaikat lähistöltä olevista pysäköintihalleista ja kauppakeskuksesta.
Varastotilan yläkerrassa on 254 m² liiketila.
Tervetuloa tutustumaan, varaathan välittäjältä oman esittelyaikasi. Voit kysyä meiltä myös muita sopivia vaihtoehtoja, kauttamme löydät juuri teidän tarpeisiinne sopivat tilat. Palvelumme on tilanhakijalle veloitukseton!
Vapautuu
Kysy
Kerros
K
Ota yhteyttä
Tuloskiinteistöt Oy
Rikhardinkatu 2 B 5, 00130 Helsinki
Näytä puhelinnumero
(09) 6841 620
Jorma Ryynänen
Commercial Real Estate Advisor LKV, LVV
Näytä puhelinnumero
+358 40 708 4064
Pyydä lisätietoa
