Vuokrataan toimistotilat - Helsinki
Sentnerikuja 1, Lassila, 00440 Helsinki #10798901
Siistiä toimistotilaa Helsingin Lassilassa
Osoite
Sentnerikuja 1, 00440 Helsinki
Tilatyyppi
Toimistotilaa
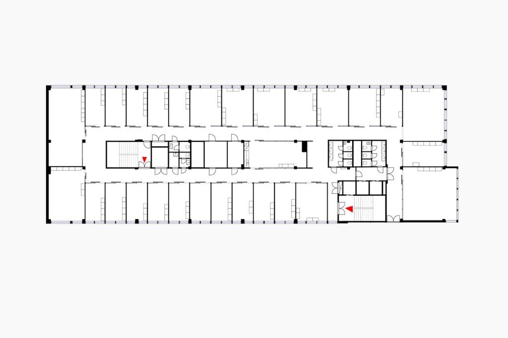
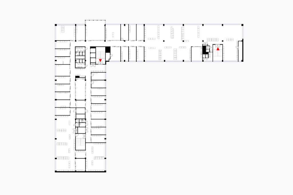
2474 m2
Pysäköinti
Kyllä
Muuta
Siistiä ja modernisoitua toimistotilaa Lassilassa, vuokrattava tila on 4.-5. kerroks1en 2474 m2 toimistotila.
Toimistohuoneisto hyvällä sijainnilla Lassilassa, Kehä 1 tie 101 ja Hämeenlinnan väylän tie E 12 läheisyydessä.
Erinomaiset liikenneyhteydet Kehäradan kautta Helsingin keskustaan tai lentoasemalle.
Oman auton käyttäjiä palvelee kiinteistön pihalla olevat 70 pysäköintipaikkaa ja vuokrattavat autopaikat viereisestä pysäköintitalosta.
Tilat ovat joustavasti muokattavissa yhdelle organisaatiolle tai tarpeen mukaan yhdistettävissä alempien kerrosten kanssa, jolloin pinta-alaa tulee jopa 7000 neliötä.
Tervetuloa tutustumaan, varaathan välittäjältä oman esittelyaikasi. Voit kysyä meiltä myös muita sopivia vaihtoehtoja, kauttamme löydät juuri teidän tarpeisiinne sopivat tilat.
Palvelumme on tilanhakijalle veloitukseton!
Toimistohuoneisto hyvällä sijainnilla Lassilassa, Kehä 1 tie 101 ja Hämeenlinnan väylän tie E 12 läheisyydessä.
Erinomaiset liikenneyhteydet Kehäradan kautta Helsingin keskustaan tai lentoasemalle.
Oman auton käyttäjiä palvelee kiinteistön pihalla olevat 70 pysäköintipaikkaa ja vuokrattavat autopaikat viereisestä pysäköintitalosta.
Tilat ovat joustavasti muokattavissa yhdelle organisaatiolle tai tarpeen mukaan yhdistettävissä alempien kerrosten kanssa, jolloin pinta-alaa tulee jopa 7000 neliötä.
Tervetuloa tutustumaan, varaathan välittäjältä oman esittelyaikasi. Voit kysyä meiltä myös muita sopivia vaihtoehtoja, kauttamme löydät juuri teidän tarpeisiinne sopivat tilat.
Palvelumme on tilanhakijalle veloitukseton!
Vapautuu
Kysy
Kerros
4-5
Ota yhteyttä
Tuloskiinteistöt Oy
Rikhardinkatu 2 B 5, 00130 Helsinki
Näytä puhelinnumero
(09) 6841 620
Nina Meyke
Commercial Real Estate Advisor
Näytä puhelinnumero
+358 50 466 1519
Jorma Ryynänen
Commercial Real Estate Advisor LKV, LVV
Näytä puhelinnumero
+358 40 708 4064
Pyydä lisätietoa
