Vuokrataan toimistotilat - Oulu
Isokatu 32, Keskusta, 90100 Oulu #10798827
Toimistotila
Osoite
Isokatu 32, 90100 Oulu
Tilatyyppi
Toimistotilaa
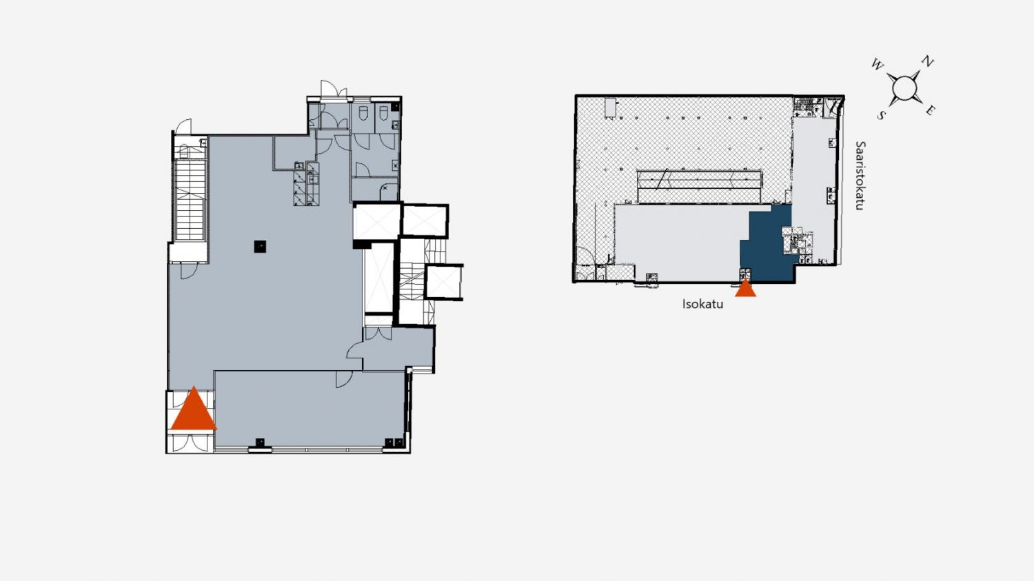
696 m2
Kiinteistö
Vuokrataan toimistotila
Vuokrataan monipuolinen 1. krs ja 2. krs toimistotila! 1. krs on 172,5 m² ja 2. krs on 524 m². Tilat ovat remontoitu hiljattain ja sisältävät useamman toimistohuoneen, kaksi neuvotteluhuonetta sekä avaraa tilaa. Sosiaalitilat löytyvät molemmista kerroksista. Pysäköinti autoille ja pyörille on sisäpihalla.
Sijainti
Osoite on Isokatu 32 eli aivan Oulun ydinkeskustassa kaikkien palvelujen äärellä.
Suunnitellaan järkevä ja viihtyisä toimitila yrityksellesi. Ota yhteyttä, niin mennään tutustumaan paikan päälle!
Vuokrataan monipuolinen 1. krs ja 2. krs toimistotila! 1. krs on 172,5 m² ja 2. krs on 524 m². Tilat ovat remontoitu hiljattain ja sisältävät useamman toimistohuoneen, kaksi neuvotteluhuonetta sekä avaraa tilaa. Sosiaalitilat löytyvät molemmista kerroksista. Pysäköinti autoille ja pyörille on sisäpihalla.
Sijainti
Osoite on Isokatu 32 eli aivan Oulun ydinkeskustassa kaikkien palvelujen äärellä.
Suunnitellaan järkevä ja viihtyisä toimitila yrityksellesi. Ota yhteyttä, niin mennään tutustumaan paikan päälle!
Vapautuu
Kysy
Ota yhteyttä
Logistila Oy
Kiilakiventie 1, 90250 OULU
Sami Karppinen
Näytä puhelinnumero
+358401994722
Pyydä lisätietoa
