Vuokrataan toimistotilat - Helsinki
Lintulahdenkatu 10, Sörnäinen, 00500 Helsinki #10798768
Upea arvokiinteistö Sörnäisten rannassa.
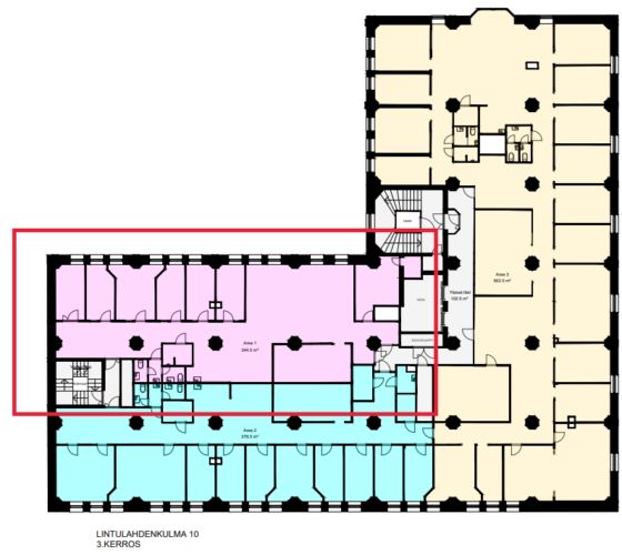
Kyseinen 244,5m2 toimisto sijaitsee kiinteistön 3. kerroksessa. Toimistossa on huoneita, avotilaa sekä omat wc-tilat. Kuvat ovat kiinteistön yleisistä tiloista.
Lintulahdenkatu 10 eli Lintunlahdenkulma on Väinö Vähäkallion suunnittelema, rakennushistoriallisesti arvokas toimistokiinteistö, joka on saneerattu nykyaikaisten vaatimusten mukaiseksi. Kiinteistön vuokralaisia palvelevat mm. aulapalvelu, ravintola ja saunaosasto Kiinteistö sijaitsee hyvien liikenneyhteyksien varrella, lähellä Kalasataman ja Sörnäisten metroasemia.
Kysy lisää numerosta 044 723 4700 tai info@bref.fi. Palvelumme on tilanhakijoille ilmainen.
Hissi
Bureau Real Estate Finland Oy
Lars Sonckin kaari 16, 02600 Espoo
Näytä puhelinnumero
0447234700
Bureau Real Estate Finland Oy
https://www.bref.fi