Vuokrataan toimistotilat - Helsinki
Aleksanterinkatu 46, Keskusta, 00100 Helsinki #10798767
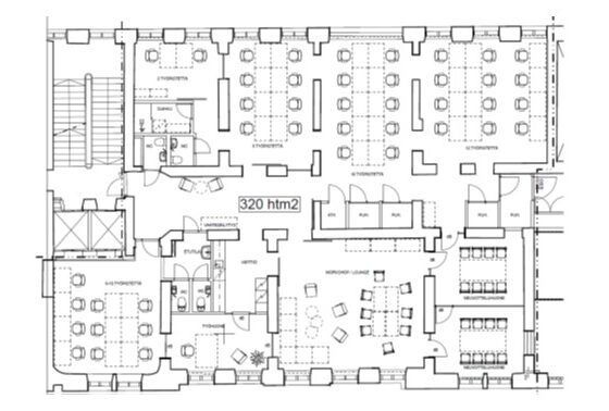
Toimistotilaa Helsingin ydinkeskustan arvokiinteistössä.
Tämä näyttävä ja valoisa 320m2 toimistotila sijaitsee kiinteistön 3. kerroksessa. Toimistossa on huoneita, avotilaa sekä omat keittiö- ja wc-tilat.
Aleksanterinkatu 46 on osa Gaselli-korttelia, tämä kiinteistö on valmistunut vuonna 1892 ja sen on suunnitellut K.A. Wreden. Se sijaitsee erinomaisella paikalla Helsingin ydinkeskustassa, Aleksanterinkadun sykkeessä. Kiinteistössä suoritettiin perusparannus kunnioittaen sen historiaa ja arkkitehtuuria. Kaikissa tiloissa on nyt koneellinen ilmanvaihto ja jäähdytys. Modernisoidut tilat valmistuivat keväällä 2016.
Kysy lisää numerosta 044 723 4700 tai info@bref.fi. Palvelumme on tilanhakijoille ilmainen.
Hissi
Bureau Real Estate Finland Oy
Lars Sonckin kaari 16, 02600 Espoo
Näytä puhelinnumero
0447234700
Bureau Real Estate Finland Oy
https://www.bref.fi