Vuokrataan toimistotilat - Helsinki
Hietalahdenranta 17, Keskusta, 00180 Helsinki #10798742
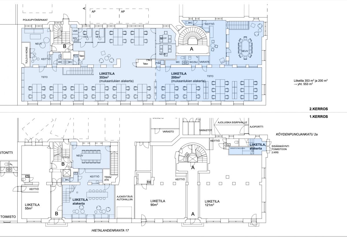
Vuokrataan upea ja hyväkuntoinen toimistotila Hietalahdenrannasta. 2. kerroksen toimistossa on avotilaa, muutama neuvotteluhuone, kaksi pientä huonetta, sekä kaksi keittiötä, wc-tilat ja suihku. Katutasossa Hietalahdenrannan puolella on upea taukotila hienolla keittiöllä ja neuvottelutila, johon voi ottaa vieraat suoraan sisään. Kerrokset yhdistyvät upeilla puuportailla. Valoisasta toimistosta on mukavat näkymät merelle. Tilassa on koneellinen ilmanvaihtoa jäähdytyksellä.
Köydenpunojankatu 2 on vanha teollisuuskiinteistö Hietalahden torin ja meren vieressä. Talo on nykyään toimistokäytössä ja kiinteistön tiloissa tulee hienosti esiin talon historia. Alueella on monipuolinen ravintolatarjonta ja hyvät julkisen liikenteen yhteydet.
Lisätietoja soita 020 730 4530 tai info@repoint.fi. Palvelumme on tilanhakijalle ilmainen.
Repoint Toimitilat Oy
Itälahdenkatu 22 B, 00210 Helsinki
Näytä puhelinnumero
020 730 4530
Lisätietoja soita Näytä puhelinnumero 020 730 4530 tai info@repoint.fi
https://repoint.fi/