Vuokrataan liiketilat - Helsinki
Tuulensuuntori 1, Hermanni, 00580 Helsinki #10798652
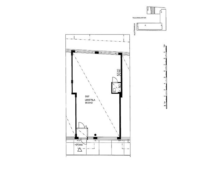
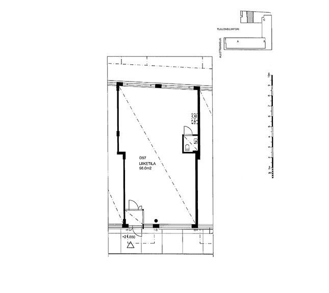
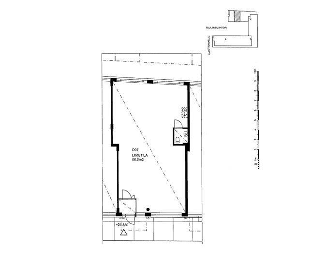
Asuinrakennuksen kivijalassa vuokralla erikokoisia liiketiloja.
Sijainti on erinomainen, sillä kulkuyhteydet keskustan kulttuuri- ja muiden palvelujen äärelle ovat loistavat. Lähimmille bussi- ja raitiovanupysäkeille on matkaa vain parisataa metriä. Sörnäisten metroasemalle on vain kivenheiton matka.
Asuinrakennus on senioritalo, eli huoneistot ovat tarkoitettu ensisijaisesti 55 vuotta täyttäneille asukkaille.
Lisätietoja 020 7290 710, lisää kohteita www.premises.fi
Kohteella ei ole lain edellyttämää energiatodistusta tai energialuokka ei tiedossa.Kerros: katu
CRE PREMISES
Puh. Näytä puhelinnumero 020 7290 710
Vantaankoskentie 14
01670 VANTAA
