Vuokrataan tuotantotilat, varastotilat - Riihimäki
Tehdaskylänkatu 11, 11710 Riihimäki #10798617
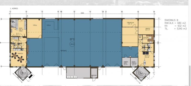
Teollisuuskiinteistö hyvällä sijainnilla. Teollisuustilaa + toimistotilaa, 2 x nosto-ovi. Pihatilaa.
Hallinosturi, Viemäri, Suihku, Sosiaalitilat, Kestopäällystetty piha-alue (asfaltti/betoni), Keittiö, Voimavirta, WC, 10 tkg kattonostin.
-Rakennuksen kummassakin päässä sisäänkäynti.
Kysy lisää mika.tilli@rhg.fi. 0407013005
Osoite
Tehdaskylänkatu 11, 11710 Riihimäki
Tilatyyppi
Tuotantotilaa
455 m2
Varastotilaa
455 m2
Yhteensä
932 m2
Vuokra
6058.00 e/kk
Vapautuu
Kysy
Huoneiden lukumäärä
1
Energiatehokkuusluokka
Ei lain edellyttämää energiatodistusta
Ota yhteyttä
RHG Real Estate
Hämeenkatu 2 B20, 20500 Turku
Näytä puhelinnumero
020 734 4020
Mika Tilli
Välittäjä, LKV
Näytä puhelinnumero
0407013005
Pyydä lisätietoa
