Vuokrataan toimistotilat - Helsinki
Kalasataman Trooli, Työpajankatu 9, Kalasatama, 00580 Helsinki #10798532
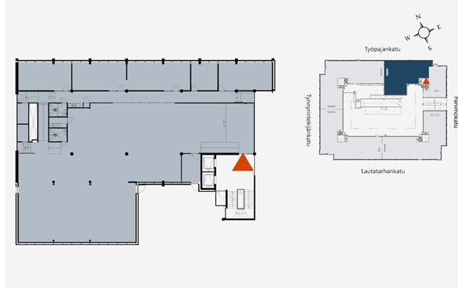
1. kerroksen avara ja valoisa toimistohuoneisto.
Osoite
Työpajankatu 9, 00580 Helsinki
Tilatyyppi
Toimistotilaa
726 m2
Muuta
Kalasataman Trooli on moderni toimistokohde, joka sijaitsee trendikkäällä ja kehittyvällä alueella vain muutaman minuutin kävelymatkan päässä metrolta hyvien kulkuyhteyksien ja palveluiden äärellä. Kohdetta uudistetaan vuosien 2023-2024 aikana ja uusi Trooli tulee ihastuttamaan mm. hienolla sisäpihalla, suurella suljetulla pyöräparkilla, remontoiduilla sauna- ja suihkutiloilla sekä kuntosalilla ja kutsuvilla sisäänkäynneillä.
Trooli on kolmesta kiinteistöstä muodostuva moderni toimitilakortteli, joka tarjoaa asiakkailleen edustavat puitteet, nykyaikaiset ja joustavat tilat sekä hyvät tekniset valmiudet. Troolin naapurusto on uusien pääkonttoreiden ja lukuisten yritysten asuttama urbaani työelämän keskus. Aluetta ympäröivät erinomaiset kulkuyhteydet, laajat arjen palvelut sekä globaalisti tunnustetut kulttuuri-ilmiöt.
Trooli on sijaitsee loistavalla paikalla Kalasatamassa, metroaseman välittömässä läheisyydessä. Nykyaikaiset tilat ovat korkealaatuiset ja muuntojoustavat, yhdelle isolle tai useammalle käyttäjälle. Huonekorkeudet kiinteistössä 2,7-3,2 m. Jokaisessa rapussa on 2 henkilöhissiä, joissa kapasiteetti 1000 kg/13 hlö, oven mitat n. 208×110 cm.
Kiinteistössä on aulapalvelu, vuokrattavia neuvottelutiloja, lounasravintola, elokuussa 2023 valmistunut uusi pyöräparkki, autohalli, syksyllä 2023 remontoitu kuntosali sosiaalitiloineen, jotka on myös uudistettu vuoden 2023 aikana. Kellarikerroksesta vuokrattavissa pienvarastotilaa. Kulku tilojen välillä sujuu näppärästi sisäpihan tai autohallin kautta.
Muunneltavat tilat ja monipuoliset palvelut hyödyttävät hyvin eri toimialojen käyttäjiä. Troolissa viihtyvät tälläkin hetkellä mm. Electrolux, PES-Arkkitehdit, Workland, Factory, Rabbit Films, Nitro Group ja Avain Yhtiöt. Näiden yritysten lisäksi vuokralaisina on rahoitus-, matkailu-, suunnittelu-, kuljetus-, kierrätys-, media- ja IT-alojen sekä julkisen alan toimijoita.
Palveluiden ympäröimänä metron, valtaväylien ja pyöräteiden katveessa: Troolin omien kattavien palveluiden lisäksi korttelin välittömässä läheisyydessä on saatavilla runsaasti lisää palveluja. Troolia vastapäätä sijaitsee maukkaita ravintoloita, ainutlaatuisia pientuottajia ja monipuolisia tapahtumia tarjoava Teurastamon alue. Yhdessä entisen kaasutehdasalueen Suvilahden kanssa ne tarjoavat laajan kulttuurikeskittymän, jossa järjestetään etenkin kesäisin erilaisia tapahtumia markkinoista musiikkifestivaaleihin. Muutaman minuutin kävelymatkan päässä on myös Kauppakeskus REDI, jossa on lisää ravintoloita ja kahviloita sekä monipuolisesti arkea helpottavia palveluita.
Kalasataman metroasemalle on Troolista vain muutama sata metriä. Valtaväylien risteyskohdassa sijaitsevasta Troolista pääsee kätevästi myös bussilla joka ilmansuuntaan. Pyörällä liikkuvia helpottavat ihanteelliset pyörätiet, kiinteistön uusi pyöräparkki sekä vuonna 2023 remontoidut suihku- ja pukuhuonetilat. Yksityisautoille on parkkihalli, josta löytyy myös sähköautojen latauspisteitä. Sisäpihalla on lisää autopaikkoja ja Trooli-korttelin ympärillä on lisäksi runsaasti kadunvarsipaikkoja.
Ympäristöystävällisyys ja energiatehokkuus ovat Troolissa vahvasti läsnä: Troolin kiinteistöjen omistajat ovat sitoutuneet käyttämään vastuullisia ja ympäristöystävällisiä toimintamalleja kiinteistöjen koko elinkaaren ajan. LEED (Leadership in Energy and Environmental Design) on amerikkalainen ympäristösertifiointijärjestelmä, jonka avulla tavoitellaan pienempää kiinteistön rakentamisen ja käytön aikaista ympäristökuormitusta.
Jokaisella Trooli-korttelin kiinteistöllä on oma LEED-sertifikaattinsa. Ne ovat kiinteistön käyttövaiheen ympäristöystävällisyyden osoittavan kategorian sertifikaatteja, jotka mittaavat muuan muassa rakennuksen energia- ja materiaalitehokkuutta, vedenkäyttöä, sisäolosuhteita sekä kestävän kehityksen mukaista ylläpitoa. Troolin tilamuutostöissä sertifikaatit velvoittavat suosimaan paikallisia ja kierrätettyjä materiaaleja sekä haitallisten päästöjen minimointia.
Trooli on kolmesta kiinteistöstä muodostuva moderni toimitilakortteli, joka tarjoaa asiakkailleen edustavat puitteet, nykyaikaiset ja joustavat tilat sekä hyvät tekniset valmiudet. Troolin naapurusto on uusien pääkonttoreiden ja lukuisten yritysten asuttama urbaani työelämän keskus. Aluetta ympäröivät erinomaiset kulkuyhteydet, laajat arjen palvelut sekä globaalisti tunnustetut kulttuuri-ilmiöt.
Trooli on sijaitsee loistavalla paikalla Kalasatamassa, metroaseman välittömässä läheisyydessä. Nykyaikaiset tilat ovat korkealaatuiset ja muuntojoustavat, yhdelle isolle tai useammalle käyttäjälle. Huonekorkeudet kiinteistössä 2,7-3,2 m. Jokaisessa rapussa on 2 henkilöhissiä, joissa kapasiteetti 1000 kg/13 hlö, oven mitat n. 208×110 cm.
Kiinteistössä on aulapalvelu, vuokrattavia neuvottelutiloja, lounasravintola, elokuussa 2023 valmistunut uusi pyöräparkki, autohalli, syksyllä 2023 remontoitu kuntosali sosiaalitiloineen, jotka on myös uudistettu vuoden 2023 aikana. Kellarikerroksesta vuokrattavissa pienvarastotilaa. Kulku tilojen välillä sujuu näppärästi sisäpihan tai autohallin kautta.
Muunneltavat tilat ja monipuoliset palvelut hyödyttävät hyvin eri toimialojen käyttäjiä. Troolissa viihtyvät tälläkin hetkellä mm. Electrolux, PES-Arkkitehdit, Workland, Factory, Rabbit Films, Nitro Group ja Avain Yhtiöt. Näiden yritysten lisäksi vuokralaisina on rahoitus-, matkailu-, suunnittelu-, kuljetus-, kierrätys-, media- ja IT-alojen sekä julkisen alan toimijoita.
Palveluiden ympäröimänä metron, valtaväylien ja pyöräteiden katveessa: Troolin omien kattavien palveluiden lisäksi korttelin välittömässä läheisyydessä on saatavilla runsaasti lisää palveluja. Troolia vastapäätä sijaitsee maukkaita ravintoloita, ainutlaatuisia pientuottajia ja monipuolisia tapahtumia tarjoava Teurastamon alue. Yhdessä entisen kaasutehdasalueen Suvilahden kanssa ne tarjoavat laajan kulttuurikeskittymän, jossa järjestetään etenkin kesäisin erilaisia tapahtumia markkinoista musiikkifestivaaleihin. Muutaman minuutin kävelymatkan päässä on myös Kauppakeskus REDI, jossa on lisää ravintoloita ja kahviloita sekä monipuolisesti arkea helpottavia palveluita.
Kalasataman metroasemalle on Troolista vain muutama sata metriä. Valtaväylien risteyskohdassa sijaitsevasta Troolista pääsee kätevästi myös bussilla joka ilmansuuntaan. Pyörällä liikkuvia helpottavat ihanteelliset pyörätiet, kiinteistön uusi pyöräparkki sekä vuonna 2023 remontoidut suihku- ja pukuhuonetilat. Yksityisautoille on parkkihalli, josta löytyy myös sähköautojen latauspisteitä. Sisäpihalla on lisää autopaikkoja ja Trooli-korttelin ympärillä on lisäksi runsaasti kadunvarsipaikkoja.
Ympäristöystävällisyys ja energiatehokkuus ovat Troolissa vahvasti läsnä: Troolin kiinteistöjen omistajat ovat sitoutuneet käyttämään vastuullisia ja ympäristöystävällisiä toimintamalleja kiinteistöjen koko elinkaaren ajan. LEED (Leadership in Energy and Environmental Design) on amerikkalainen ympäristösertifiointijärjestelmä, jonka avulla tavoitellaan pienempää kiinteistön rakentamisen ja käytön aikaista ympäristökuormitusta.
Jokaisella Trooli-korttelin kiinteistöllä on oma LEED-sertifikaattinsa. Ne ovat kiinteistön käyttövaiheen ympäristöystävällisyyden osoittavan kategorian sertifikaatteja, jotka mittaavat muuan muassa rakennuksen energia- ja materiaalitehokkuutta, vedenkäyttöä, sisäolosuhteita sekä kestävän kehityksen mukaista ylläpitoa. Troolin tilamuutostöissä sertifikaatit velvoittavat suosimaan paikallisia ja kierrätettyjä materiaaleja sekä haitallisten päästöjen minimointia.
Vapautuu
Kysy
Rakennusvuosi
2022
Kerros
1
Ota yhteyttä
Juhola Asset Management Oy
Itsehallintokuja 4 02600 Espoo
Näytä puhelinnumero
040 4551 390
Leena Juhola
Pyydä lisätietoa
