Vuokrataan varastotilat - Espoo
Koskelontie 19, Koskelo, 02920 Espoo #10798504
Espoon Koskelosta vapaana laadukasta varastotilaa.
Osoite
Koskelontie 19, 02920 Espoo
Tilatyyppi
Varastotilaa
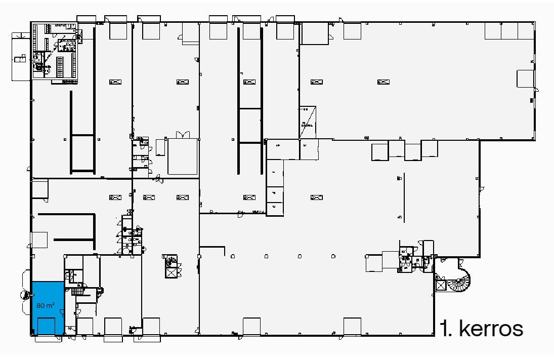
80 m2
Vuokra
Hintatiedot pyydettäessä!
Vuokraan sisältyy lämpö
Kiinteistö
Kiinteistön ensimmäisestä kerroksesta vapaana kompakti 80m2 varastotila.
Varastotila on osa n. 8000m2 kokoista toimitilakiinteistöä Koskelon yritysalueella. Ensimmäisen kerroksen tilat koostuvat erikokoisista varasto- ja tuotantotiloista sekä kiinteistön toisesta kerroksesta löytyy myös toimistotiloja. Alueella toimii useita autoalan liikkeitä.
Myös samasta kiinteistöstä toimistotilaa vapaana! Kysy lisää!
Tilat on heti vapaana ja odottavat uusia vuokralaisia. Ota yhteyttä ja käydään tutustumassa!
Varastotila on osa n. 8000m2 kokoista toimitilakiinteistöä Koskelon yritysalueella. Ensimmäisen kerroksen tilat koostuvat erikokoisista varasto- ja tuotantotiloista sekä kiinteistön toisesta kerroksesta löytyy myös toimistotiloja. Alueella toimii useita autoalan liikkeitä.
Myös samasta kiinteistöstä toimistotilaa vapaana! Kysy lisää!
Tilat on heti vapaana ja odottavat uusia vuokralaisia. Ota yhteyttä ja käydään tutustumassa!
Sijainti
Koskelontie sijaitsee Espoon Koskelon teollisuusalueella, joka on tunnettu logistiikka- ja teollisuustoiminnastaan. Tämä alue on lähellä Kehä III, mikä tekee siitä hyvin saavutettavan paikallisliikenteen ja valtateiden kannalta. Sijainti on erityisesti hyödyllinen yrityksille, jotka tarvitsevat hyviä kuljetusyhteyksiä pääkaupunkiseudulle ja muualle Suomeen.
Läheisyydessä on muita yrityksiä, varastoja ja teollisuuskiinteistöjä, mikä tekee alueesta liiketoiminnallisesti aktiivisen. Koskelontien sijainti mahdollistaa myös nopeat yhteydet esimerkiksi Vihdintielle ja Turunväylälle, ja alueella on useita palveluita yrityksille sekä työntekijöille.
Läheisyydessä on muita yrityksiä, varastoja ja teollisuuskiinteistöjä, mikä tekee alueesta liiketoiminnallisesti aktiivisen. Koskelontien sijainti mahdollistaa myös nopeat yhteydet esimerkiksi Vihdintielle ja Turunväylälle, ja alueella on useita palveluita yrityksille sekä työntekijöille.
Vapautuu
Heti
Energiatehokkuusluokka
Ei lain edellyttämää energiatodistusta
Katutasossa
Näkyvällä paikalla
Ota yhteyttä
Arvo Premises Oy
Joakim Kukkonen
Osakas, Toimitilavälittäjä
Näytä puhelinnumero
040 555 8106
Seppo Pakarinen
Osakas, Kiinteistönvälittäjä. LKV, YKV, AKA
Näytä puhelinnumero
040-703 8000
Pyydä lisätietoa
