Vuokrataan liiketilat - Oulu
Kirkkokatu 4 L1, Keskusta, 90100 Oulu #10798411
Osoite
Kirkkokatu 4 L1, 90100 Oulu
Tilatyyppi
Liiketilaa
622 - 1175 m2
Vuokra
12190,00 €/kk
Vuokraan sisältyy lämpö
Muuta
Oulun keskustan ytimestä Kirkkokadulta vuokrattavana tyylikäs ja valoisa liiketila!
Liiketila sijaitsee hyvällä ja näkyvällä paikalla ydinkeskustassa. Liiketilassa on suuret näyteikkunat, joista valo kulkeutuu mukavasti myymälän puolelle. Ikkunapintaa voi hyödyntää näyttävästi esim. ikkunateippauksin. Tilan kruunaa upea holvimainen katto.
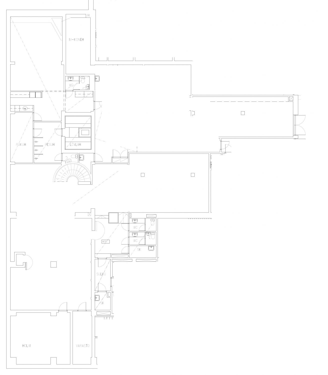
Katutasossa on tilaa n. 622m2. Tila koostuu pääosin isosta avotilasta, jossa tyylikäs holvikaarimallinen sisäkatto!
Katutasosta löytyy myös pienempi toimisto- ja varastotila.
Katutason tilan lisäksi kellaritasosta löytyy tilaa n. 553 m2. Tilaa on mm. varastointitarpeeseen soveltuvaa avotilaa.
Lisäksi kellaritasolta löytyy sosiaalitilat, keittiö-/kahvittelutila, sekä sauna ja suihkutilat!
Tiedustele autopaikkojen saatavuudesta tarpeesi mukaan!
Vuokraan sisältyy lämmitys.
Erilliskorvauksena vuokralainen vastaa vedestä kulutuksen mukaan ja tekee oman sähkösopimuksen.
Ole yhteydessä ja sovitaan esittely!
Eikö tämä ole sopiva? Kysy muita vaihtoehtojamme!
Liiketila sijaitsee hyvällä ja näkyvällä paikalla ydinkeskustassa. Liiketilassa on suuret näyteikkunat, joista valo kulkeutuu mukavasti myymälän puolelle. Ikkunapintaa voi hyödyntää näyttävästi esim. ikkunateippauksin. Tilan kruunaa upea holvimainen katto.
Katutasossa on tilaa n. 622m2. Tila koostuu pääosin isosta avotilasta, jossa tyylikäs holvikaarimallinen sisäkatto!
Katutasosta löytyy myös pienempi toimisto- ja varastotila.
Katutason tilan lisäksi kellaritasosta löytyy tilaa n. 553 m2. Tilaa on mm. varastointitarpeeseen soveltuvaa avotilaa.
Lisäksi kellaritasolta löytyy sosiaalitilat, keittiö-/kahvittelutila, sekä sauna ja suihkutilat!
Tiedustele autopaikkojen saatavuudesta tarpeesi mukaan!
Vuokraan sisältyy lämmitys.
Erilliskorvauksena vuokralainen vastaa vedestä kulutuksen mukaan ja tekee oman sähkösopimuksen.
Ole yhteydessä ja sovitaan esittely!
Eikö tämä ole sopiva? Kysy muita vaihtoehtojamme!
Vapautuu
Heti vapaa
Rakennusvuosi
1957
Kerros
1
Energiatehokkuusluokka
H (ei luokitusta)
Ota yhteyttä
Kiinteistö-Tahkola Oy
Lumijoentie 1, 90400 Oulu
Näytä puhelinnumero
0207 480 250
Sami Kortesoja
Näytä puhelinnumero
045 896 4803
Pyydä lisätietoa
