Vuokrataan toimistotilat, tuotantotilat, varastotilat - Kaarina
Ahokyläntie 3, Krossi, 20780 Kaarina #10798408
Laadukasta jäähdytettyä toimisto/ varasto ja tuotantotilaa Kaarinasta
Osoite
Ahokyläntie 3, 20780 Kaarina
Tilatyyppi
Toimistotilaa
365 m2
Tuotantotilaa
365 m2
Varastotilaa
365 m2
Yhteensä
365 m2
Pysäköinti
Pihalla
Muuta
Kesäkuun alusta vapautuva moderni jäähdytetty toimistohuoneisto sekä 6 metriä korkeaa siistiä hallitilaa Kaarinan Krossista.
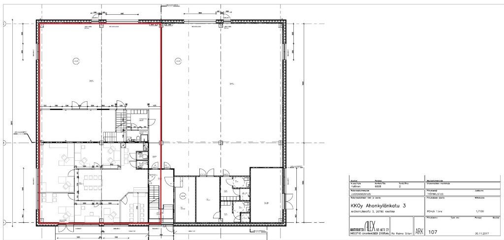
134,5 m2 toimistossa on neljä työhuonetta, neuvotteluhuone, avotila, kaksi wc:tä, pieni keittiönurkkaus sekä pieni varasto.
Hallin osuus on 230,5m2 sekä tämän lisäksi n. 40m2 parvi.
Sähkökäyttöinen nosto-ovi ja erillinen käyntiovi. Vesipiste ja lattiakaivo.
2.kerroksesta vuokrattavissa lisää toimistotilaa joka on myös 134,5m2.
Hallin puolella erilliset sos.tilat.
Edulliset käyttökustannukset.
Tervetuloa tutustumaan, varaathan välittäjältä oman esittelyaikasi. Voit kysyä meiltä myös muita sopivia vaihtoehtoja, kauttamme löydät juuri Teidän tarpeisiinne sopivat tilat. Palvelumme on tilanhakijalle veloitukseton!
134,5 m2 toimistossa on neljä työhuonetta, neuvotteluhuone, avotila, kaksi wc:tä, pieni keittiönurkkaus sekä pieni varasto.
Hallin osuus on 230,5m2 sekä tämän lisäksi n. 40m2 parvi.
Sähkökäyttöinen nosto-ovi ja erillinen käyntiovi. Vesipiste ja lattiakaivo.
2.kerroksesta vuokrattavissa lisää toimistotilaa joka on myös 134,5m2.
Hallin puolella erilliset sos.tilat.
Edulliset käyttökustannukset.
Tervetuloa tutustumaan, varaathan välittäjältä oman esittelyaikasi. Voit kysyä meiltä myös muita sopivia vaihtoehtoja, kauttamme löydät juuri Teidän tarpeisiinne sopivat tilat. Palvelumme on tilanhakijalle veloitukseton!
Vapautuu
Kysy
Kerros
1.
Ota yhteyttä
Tuloskiinteistöt Oy
Kauppiaskatu 11 C 23, 20100 Turku
Näytä puhelinnumero
(02) 274 3500
Ritva Nuotio
Commercial Real Estate Advisor LKV, KED
Näytä puhelinnumero
+358 50 5261 744
Pyydä lisätietoa
