Vuokrataan tuotantotilat - Helsinki
Muonamiehentie 12, Konala, 00390 Helsinki #10798324
Vuokrattavana autohuoltotilaksi soveltuva siistiä toimitila Konalassa.
Osoite
Muonamiehentie 12, 00390 Helsinki
Tilatyyppi
Tuotantotilaa
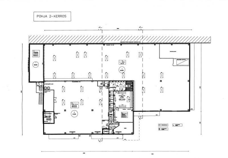
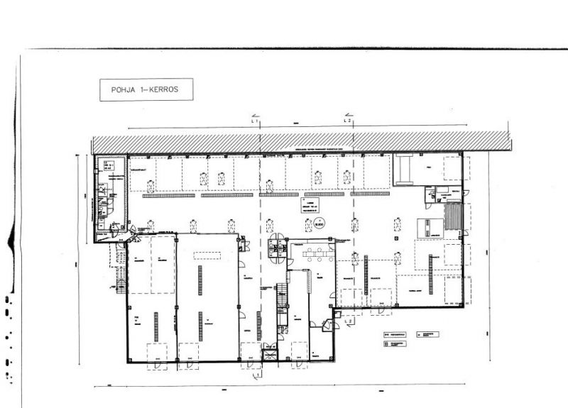
2100 m2
Kiinteistö
Vuokrattavana autohuoltotilaksi soveltuva siistiä toimitila.
Sijainti
Konala, Helsinki
Pysäköinti
Kiinteistön edustalla.
Palvelut
Lähialueen palvelut.
Kulkuyhteydet
-Bussi
-Oma auto
-Oma auto
Vapautuu
Heti
Kerros
1-2
Energiatehokkuusluokka
Ei lain edellyttämää energiatodistusta
Katutasossa
Näkyvällä paikalla
Ota yhteyttä
REALIUM OY LKV
Tammasaarenkatu 1, 00180 Helsinki
Vaihde:
Näytä puhelinnumero
010 326 346
Tuomo Mäkelä
tuomo.makela@realium.fi
p.
Näytä puhelinnumero
044 050 1158
Joel Keto
joel.keto@realium.fi
p.
Näytä puhelinnumero
045 317 0330
KAIKKI TILAVAIHTOEHDOT KERRALLA!
SOITA - MEILAA JA TILAA NÄYTTÖ!
Ilmainen palvelu tilanhakijoille.
Kartoitamme parhaat tilavaihtoehdot.
Kaikki kohteet eivät ole netissä.
Pyydä lisätietoa
