Vuokrataan toimistotilat - Helsinki
Lindström talo, Lautatarhankatu 6, Kalasatama, 00580 Helsinki #10798132
Tyylikäs 2. kerroksen korkea, industrial-henkinen 678 m² toimisto keskeisellä sijainnilla.
Osoite
Lautatarhankatu 6, 00580 Helsinki
Tilatyyppi
Toimistotilaa
678 m2
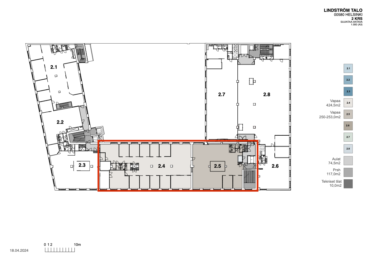
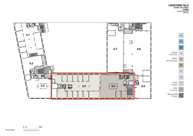
Pohjapiirros
Kiinteistö
Toisen kerroksen avotilasta ja huoneista koostuva korkea monitilatoimisto.
Vuonna 1902 valmistunut punatiilinen Lindström Talo on Kalasataman alueen ensimmäisiä teollisuuskiinteistöjä, joka on aikojen saatossa muuntautunut vanhasta pesularakennuksesta persoonalliseksi ja nykyaikaiseksi toimistotaloksi. Punatiilinen Lindström Talo sijaitsee Kalasataman ytimessä, trendikkään kaupunki- ja ruokakulttuurikeskuksen Teurastamon portin kupeessa.
Menneisyys elää tiloissa sulassa sovussa modernien toimitilojen ja nykyaikaisen talotekniikan kanssa. Talo on saneerattu historiaa vaalien ja se henkii rouheaa industrial-tunnelmaa – osittain huonekorkeus yltää huimaan 4 metriin ja suuret ikkunat, avarat ja valoisat tilat luovat työympäristöön ainutlaatuisen tunnelman. Suojellun julkisivun ruutuikkunat tuovat tiloihin persoonallisen ilmeen.
Talon toimitilat ovat yksilöllisiä ja muokattavissa erilaisiin tarpeisiin ja tilaratkaisuihin. Ensimmäinen kerroksen yleiset tilat, aula, ravintola sekä neuvottelutila-alue ovat parhaillaan remontin alla. Elokuussa 2024 valmistuva remontti huomioi kiertotaloutta ainutlaatuisella tavalla ja suunnittelun pohjana on ollut materiaalien uudelleenkäytön ja kierrättämisen maksimointi. Hanke on mukana Helsingin kaupungin kiertotalouden klusteriohjelmassa.
Ilmoituksen kuvat ovat yleiskuvia kiinteistön muista tiloista.
Vuonna 1902 valmistunut punatiilinen Lindström Talo on Kalasataman alueen ensimmäisiä teollisuuskiinteistöjä, joka on aikojen saatossa muuntautunut vanhasta pesularakennuksesta persoonalliseksi ja nykyaikaiseksi toimistotaloksi. Punatiilinen Lindström Talo sijaitsee Kalasataman ytimessä, trendikkään kaupunki- ja ruokakulttuurikeskuksen Teurastamon portin kupeessa.
Menneisyys elää tiloissa sulassa sovussa modernien toimitilojen ja nykyaikaisen talotekniikan kanssa. Talo on saneerattu historiaa vaalien ja se henkii rouheaa industrial-tunnelmaa – osittain huonekorkeus yltää huimaan 4 metriin ja suuret ikkunat, avarat ja valoisat tilat luovat työympäristöön ainutlaatuisen tunnelman. Suojellun julkisivun ruutuikkunat tuovat tiloihin persoonallisen ilmeen.
Talon toimitilat ovat yksilöllisiä ja muokattavissa erilaisiin tarpeisiin ja tilaratkaisuihin. Ensimmäinen kerroksen yleiset tilat, aula, ravintola sekä neuvottelutila-alue ovat parhaillaan remontin alla. Elokuussa 2024 valmistuva remontti huomioi kiertotaloutta ainutlaatuisella tavalla ja suunnittelun pohjana on ollut materiaalien uudelleenkäytön ja kierrättämisen maksimointi. Hanke on mukana Helsingin kaupungin kiertotalouden klusteriohjelmassa.
Ilmoituksen kuvat ovat yleiskuvia kiinteistön muista tiloista.
Kulkuyhteydet
Metroasema 400 m, Raitiovaunupysäkki 300 m, Bussipysäkki 100 m, Juna-asema 2,5 km, Lentoasema 16 km
Vapautuu
Heti
Kerros
2
Energiatehokkuusluokka
Ei lain edellyttämää energiatodistusta
Näkyvällä paikalla
Hissi
Ota yhteyttä
ScanReal Oy LKV
Opus Business Park
Hitsaajankatu 24
00810 Helsinki
info@scanreal.fi
Puh:
Näytä puhelinnumero
020 730 8830
Sopivat toimitilat yhdellä otolla!
Kartoitamme toimitilatarpeesi ja etsimme yrityksellesi parhaiten sopivat vapaat toimitilat. Koska vuokranantajat maksavat palvelumme, on tämä yrityksellesi veloituksetonta.
OTA YHTEYTTÄ - SOVI NÄYTTÖ!
Kaikki kohteemme eivät ole netissä, kerro tilatarpeesi niin kartoitamme vaihtoehdot.
Palvelumme on tilanhakijalle ilmainen
Pyydä lisätietoa
