Vuokrataan toimistotilat - Helsinki
Valimotie 13 A, Pitäjänmäki, 00380 Helsinki #10798124
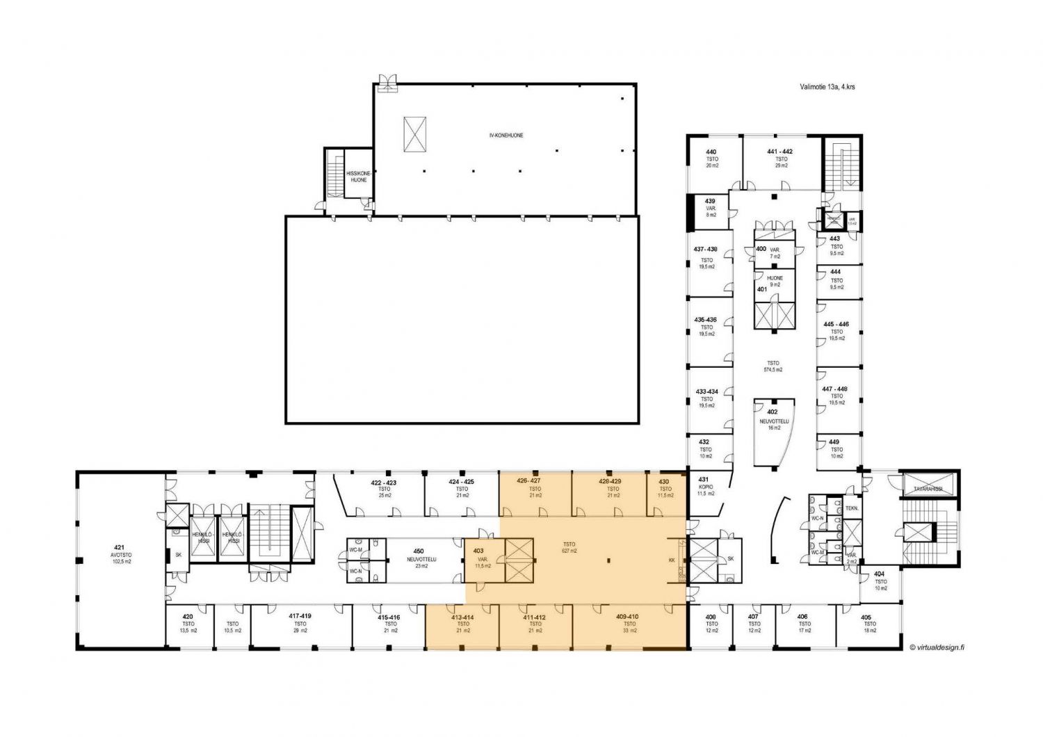
Jäähdytetty toimistotila Valimotie 13 a:n rakenuksessa omalla sisäänkäynnillä rakennuksen neljännessä kerroksessa. Tila koostuu useammasta toimistohuoneesta ja tilajakoa on muokattavissa tarpeen mukaan. Tila sisältää oman keittiön.
Persoonallinen, entinen tehdaskiinteistö, joka -90 luvulla täysin saneerattu toimistokiinteistöksi. Kiinteistö tarjoaa monipuoliset palvelut kuten: aulapalvelut, vuokrattavat neuvottelutilat, saunan ja kuntosalin. Kiinteistössä kaksi tavarahissiä ja lastausalue autohallissa. Kiinteistössä toimii suosittu lounasravintola Factory, johon tullaan kauempaakin lounaalle.
Lisätietoja numerosta 020 7290 710. Lisää kohteita osoitteessa www.premises.fi.
Kohteella ei ole lain edellyttämää energiatodistusta tai energialuokka ei tiedossa.Kerros: 4
CRE PREMISES
Puh. Näytä puhelinnumero 020 7290 710
Vantaankoskentie 14
01670 VANTAA
