Vuokrataan tuotantotilat - Helsinki
Muonamiehentie 12, Konala, 00390 Helsinki #10798067
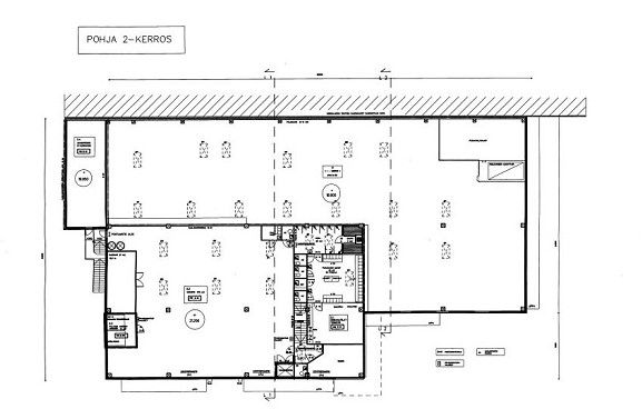
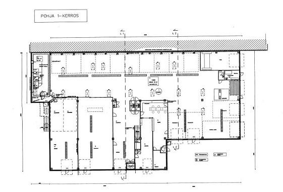
Vuokrataan hyväkuntoista autokorjaamokäyttöön sekä tuotantoon soveltuvaa tilaa Konalasta. Vuonna 2001 valmistunut toimitila on ollut kiinteistön valmistumisesta asti autohuoltotilana. Vapautuminen keväällä 2025. Tarkempi vapautuminen on neuvoteltavissa.
Autopaikkoja kiinteistön pihalla. Lähellä useita lounasravintoloita ja Kauppakeskus Ristikon palvelut.
Lisätietoja soita 020 730 4530 tai info@repoint.fi. Palvelumme on tilanhakijalle ilmainen.
Osoite
Muonamiehentie 12, 00390 Helsinki
Tilatyyppi
Tuotantotilaa
2100 m2
Vapautuu
Kysy
Ota yhteyttä
Repoint Toimitilat Oy
Itälahdenkatu 22 B, 00210 Helsinki
Näytä puhelinnumero
020 730 4530
Lisätietoja soita Näytä puhelinnumero 020 730 4530 tai info@repoint.fi
https://repoint.fi/Pyydä lisätietoa
