Vuokrataan tuotantotilat, varastotilat - Raisio
Kuninkaanväylä 35, Kuninkoja, 20320 Raisio #10797999
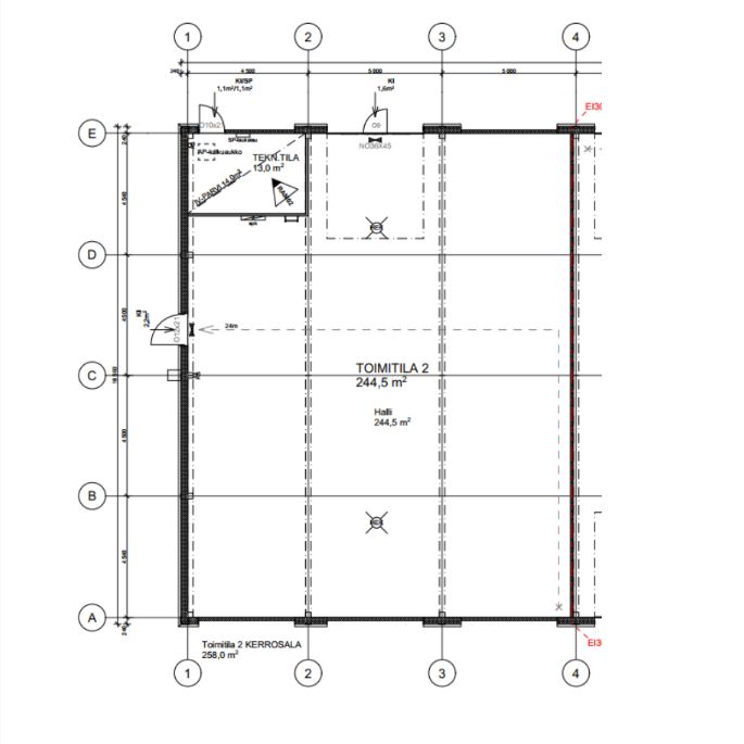
Moderni hallitila 245 m2
Osoite
Kuninkaanväylä 35, 20320 Raisio
Tilatyyppi
Tuotantotilaa
245 m2
Varastotilaa
245 m2
Yhteensä
245 m2
Kiinteistö
Nykyaikainen melkein uusi hallitila
Moderni ja siisti hallitila vuokrattavissa läheltä Kehätietä ja Myllyn/Kuninkojan yritysaluetta. Tilat taipuvat esim. kokoonpanoon, varastontiin, kevyeen tuotantoon, liiketilaksi. Nosto-ovi. Tilat koostuvat isosta avarasta hallitilasta ja siististä WC-tilasta. Muutostyöt mahdollisia. Hallin korkeus mahdollistaa esim. sosiaalitilojen tai toimiston rakentamisen kahteen kerrokseen ja näin neliöt saadaan todella tehokkaasti käyttöön.
Asvaltoidut, erittäin siistit piha-alueet. Kiinteistö on valmistunut vuonna 2021.
Samalla tontilla Fixus Raisio autokorjaamopalvelut ja vastapäätä Puuilo. Hyvät yhteydet monen suuntaan. lentokentälle 7 km, Myllyn kauppakeskukseen 2,5 km, Turun kauppatorille 7 km.
Tilat eivät sovellu autopesulakäyttöön.
Olisiko tässä yrityksenne uusi tukikohta?
Ota yhteyttä ja sovitaan tutustumiskäynti näihin tiloihin!
Moderni ja siisti hallitila vuokrattavissa läheltä Kehätietä ja Myllyn/Kuninkojan yritysaluetta. Tilat taipuvat esim. kokoonpanoon, varastontiin, kevyeen tuotantoon, liiketilaksi. Nosto-ovi. Tilat koostuvat isosta avarasta hallitilasta ja siististä WC-tilasta. Muutostyöt mahdollisia. Hallin korkeus mahdollistaa esim. sosiaalitilojen tai toimiston rakentamisen kahteen kerrokseen ja näin neliöt saadaan todella tehokkaasti käyttöön.
Asvaltoidut, erittäin siistit piha-alueet. Kiinteistö on valmistunut vuonna 2021.
Samalla tontilla Fixus Raisio autokorjaamopalvelut ja vastapäätä Puuilo. Hyvät yhteydet monen suuntaan. lentokentälle 7 km, Myllyn kauppakeskukseen 2,5 km, Turun kauppatorille 7 km.
Tilat eivät sovellu autopesulakäyttöön.
Olisiko tässä yrityksenne uusi tukikohta?
Ota yhteyttä ja sovitaan tutustumiskäynti näihin tiloihin!
Vapautuu
Kysy
Kerros
1. /katutaso
Ota yhteyttä
Logistila Oy
Tuureporinkatu 6, 20100 TURKU
Stina Lindroos
Näytä puhelinnumero
044 972 9468
Pyydä lisätietoa
