Vuokrataan toimistotilat, liiketilat - Helsinki
Mechelininkatu 3 c, Kamppi, 00100 Helsinki #10797941
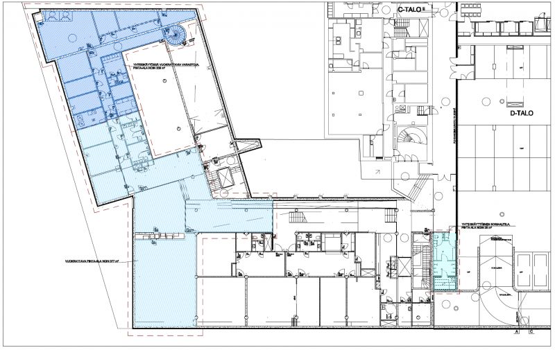
Vuokrattavana persoonallista, siistiä toimitilaa.
Osoite
Mechelininkatu 3 c, 00100 Helsinki
Tilatyyppi
Toimistotilaa
377 m2
Liiketilaa
377 m2
Yhteensä
377 m2
Tila soveltuu
Koulutus
Kiinteistö
Vuokrattavana persoonallista, siistiä toimitilaa, joka soveltuu sekä koulutus- että toimistotilaksi.
Sijainti
Kamppi, Helsinki
Palvelut
Helsingin ydinkeskustan palvelut.
Kulkuyhteydet
-Metro
-Bussi
-Raitiovaunu
-Lähijuna
-Oma auto
-Bussi
-Raitiovaunu
-Lähijuna
-Oma auto
Vapautuu
Heti
Kerros
-1
Energiatehokkuusluokka
Ei lain edellyttämää energiatodistusta
Näkyvällä paikalla
Hissi
Ota yhteyttä
REALIUM OY LKV
Tammasaarenkatu 1, 00180 Helsinki
Vaihde:
Näytä puhelinnumero
010 326 346
Tuomo Mäkelä
tuomo.makela@realium.fi
p.
Näytä puhelinnumero
044 050 1158
Joel Keto
joel.keto@realium.fi
p.
Näytä puhelinnumero
045 317 0330
KAIKKI TILAVAIHTOEHDOT KERRALLA!
SOITA - MEILAA JA TILAA NÄYTTÖ!
Ilmainen palvelu tilanhakijoille.
Kartoitamme parhaat tilavaihtoehdot.
Kaikki kohteet eivät ole netissä.
Pyydä lisätietoa
