Vuokrataan toimistotilat - Helsinki
Kaivokatu 10, Keskusta, 00101 Helsinki #10797856
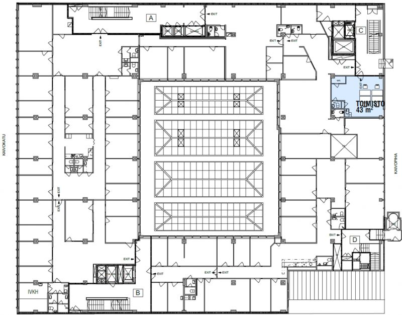
Keskustassa Kaivotalossa 4. kerroksen tarjolla modernia, siistiä ja valoisaa toimistotilaa.
Osoite
Kaivokatu 10, 00101 Helsinki
Tilatyyppi
Toimistotilaa
43 m2
Kiinteistö
Keskustassa Kaivotalossa 4. kerroksen tarjolla modernia, siistiä ja valoisaa toimistotilaa. Tilassa on pieni varastohuone ja keittiön sekä wc.
Sijainti
Keskusta, Helsinki
Palvelut
Alueen loistavat palvelut.
Kulkuyhteydet
-Metro
-Raitiovaunu
-Bussi
-Oma auto
-Raitiovaunu
-Bussi
-Oma auto
Vapautuu
Heti
Kerros
4
Energiatehokkuusluokka
Ei lain edellyttämää energiatodistusta
Näkyvällä paikalla
Hissi
Ota yhteyttä
REALIUM OY LKV
Tammasaarenkatu 1, 00180 Helsinki
Vaihde:
Näytä puhelinnumero
010 326 346
Tuomo Mäkelä
tuomo.makela@realium.fi
p.
Näytä puhelinnumero
044 050 1158
Joel Keto
joel.keto@realium.fi
p.
Näytä puhelinnumero
045 317 0330
KAIKKI TILAVAIHTOEHDOT KERRALLA!
SOITA - MEILAA JA TILAA NÄYTTÖ!
Ilmainen palvelu tilanhakijoille.
Kartoitamme parhaat tilavaihtoehdot.
Kaikki kohteet eivät ole netissä.
Pyydä lisätietoa
