Vuokrataan toimistotilat - Helsinki
Elielinaukio 5, Keskusta, 00100 Helsinki #10797827
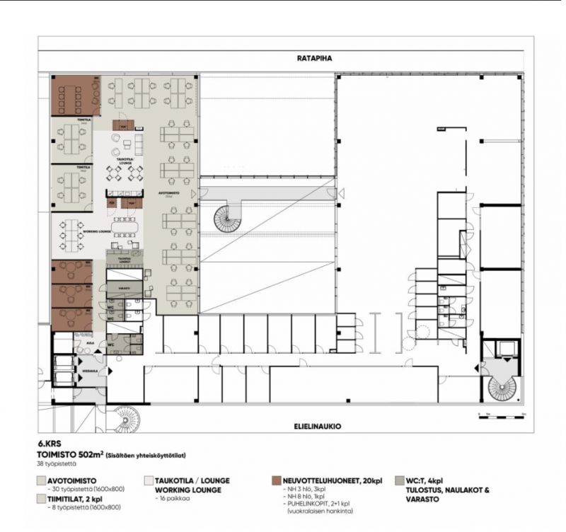
Vuokrataan valoisa 6. kerroksen toimistotila upeilla näkymillä ydinkeskustasta. Avarasta tilasta näkymät kolmeen eri suuntaan. Tilassa avotoimistoa, huoneita, 4 wc:tä, sekä viihtyisät keittiö- ja taukotilat keskellä toimistoa. Tilaa on mahdollista muokata seuraavan vuokralaisen tarpeiden mukaan, esimerkiksi tilaan mahdollista tehdä huoneita lisää.
Elielinaukio 5 on rakennettu 2003 ja se on toiminut pääkonttorina siitä alkaen. Kiinteistö muutetaan nyt ensi kertaa monikäyttäjätaloksi, joka tarjoaa tehokasta ja nykyaikaista toimitilaa ainutlaatuisin junaratanäkymin. Rakennuksen julkisivu, sisäänkäynti ja palveltu aula uudistetaan ja taloon avataan yhteiskäyttöinen terassi. Kellarista löytyy työmatkapyöräilijöille pyöräparkki, suihkutilat ja pukukaapit. Pyöräparkkiin pääsee ajamaan suoraan sisään kohta valmistuvan Kaisatunnelin kautta. Kiinteistöllä on BREEAM-sertifikaatti.
Lisätietoja soita 020 730 4530 tai info@repoint.fi. Palvelumme on tilanhakijalle ilmainen.
Repoint Toimitilat Oy
Itälahdenkatu 22 B, 00210 Helsinki
Näytä puhelinnumero
020 730 4530
Lisätietoja soita Näytä puhelinnumero 020 730 4530 tai info@repoint.fi
https://repoint.fi/