Vuokrataan varastotilat - Helsinki
Vuosaaren satama, Seilorinkatu 1, Vuosaari, 00980 Helsinki #10797778
Hyväkokoista ja modernia varastotilaa Vuosaaren satamasta.
Osoite
Seilorinkatu 1, 00980 Helsinki
Tilatyyppi
Varastotilaa
7669 m2
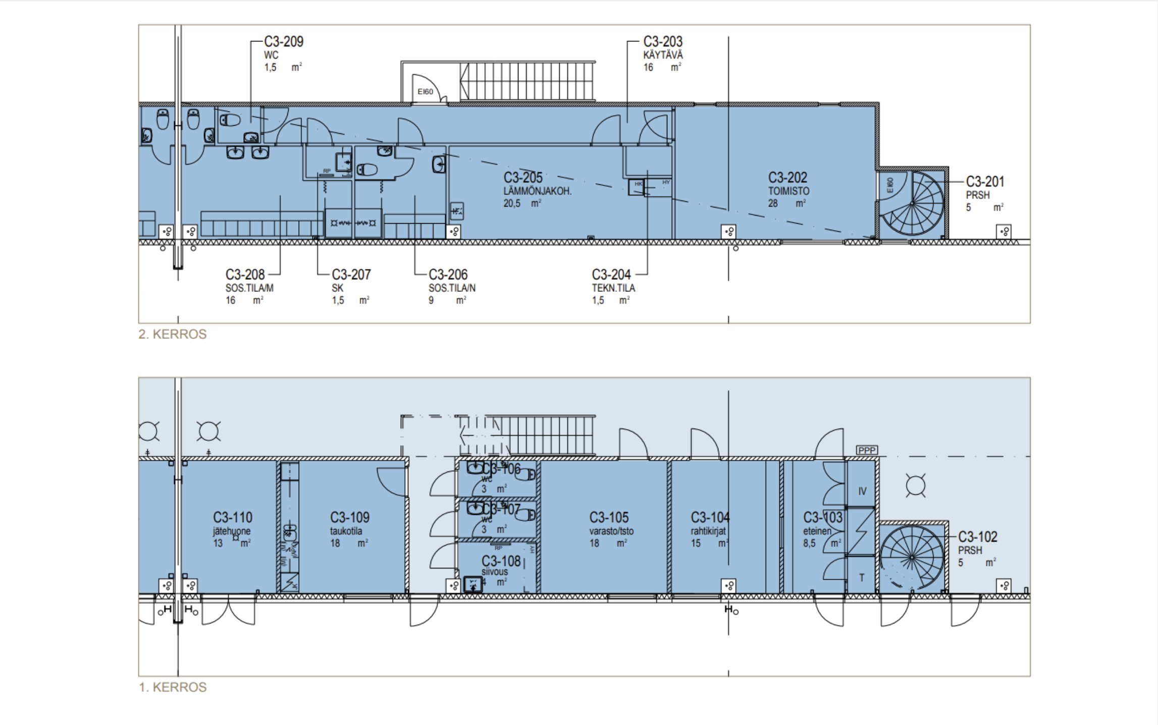
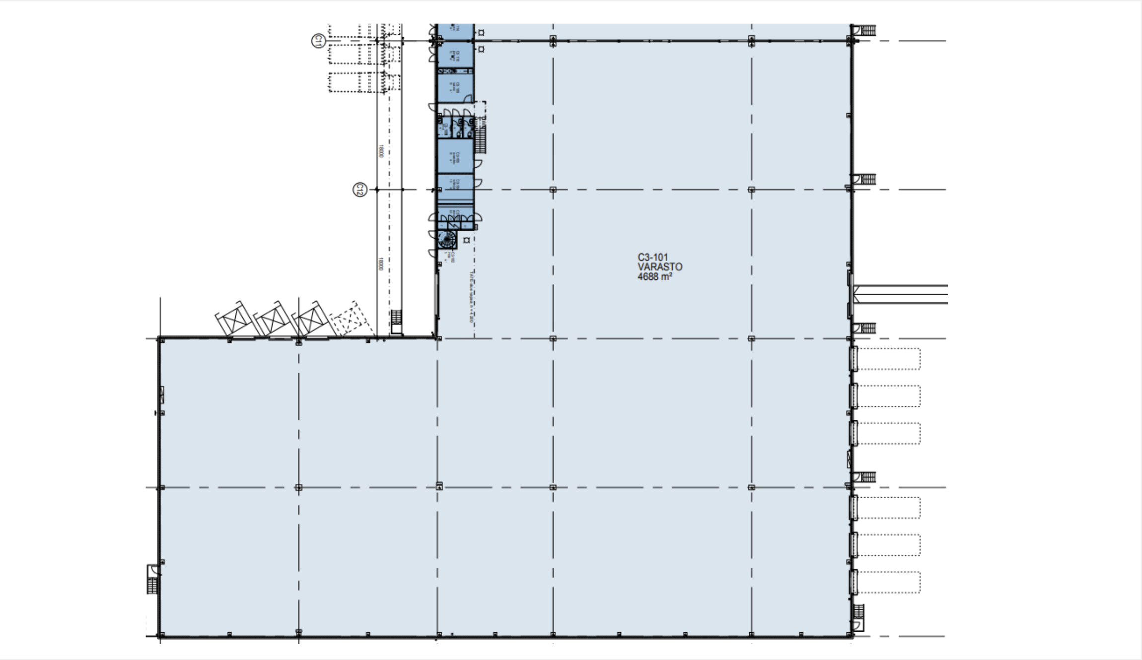
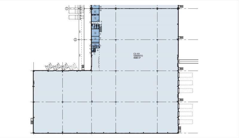
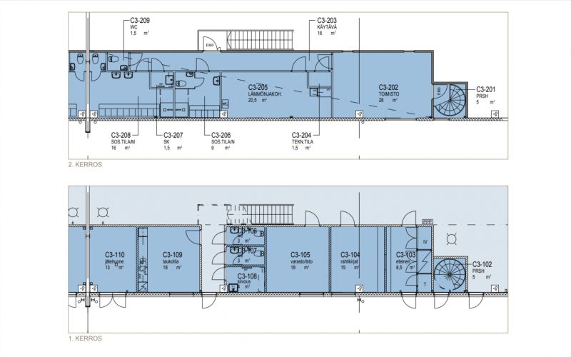
Pohjapiirros
Kiinteistö
Varaston vapaa korkeus on hieman yli 6 m ja lattiakantavuus 4 000 kg/m2. Varastossa on 16 lastaustaskua, lastauslaituri isolla ovella ja ramppi isolla ovella. Tilassa on myös pieni toimisto, sosiaalitilat, keittiö ja taukotila. Isot piha-alueet.
Vuosaaren Logistiikkakeskus on osa vuonna 2008 valmistunutta modernia ja nykyaikaista logistiikka-aluetta. Tehokkaat neljässä eri rakennuksessa sijaitsevat vuokrattavat varastotilat ovat joustavia ja helposti muunneltavissa erilaisiin asiakkaan tarpeita ja toimintaa tukeviin kokonaisuuksiin. Logistiikkakeskuksesta on vuokrattavana myös isoja varastotilakokonaisuuksia (jopa 15 000 - 30 000 m2) kilpailukykyiseen hintaan.
Vuokrattavat varastotilat voidaan suunnitella palvelemaan mm läpivirtausterminaalina tai U-kierto ratkaisuna. Tiloihin voidaan toteuttaa asiakkaan toimintaan parhaiten soveltuvat hyllyratkaisut. Varastotilojen vapaa korkeus on 6 - 9 metriä ja lattiakantavuus on 4 000 - 5 000 kg/m² . Purkaus- ja lastaustilat on suunniteltu kontti- ja ajoneuvoliikenteen tarpeita varten. Varastojen yhteyteen voidaan toteuttaa tarvittavat toimisto- ja sosiaalitilat. Viereiseltä tontilta on mahdollista vuokrata traileripaikka.
Helsingin Sataman, Tullin ja satamaoperaattoreiden palvelut sijaitsevat samassa logistiikkakeskuksessa.
Vuosaaren Logistiikkakeskus on osa vuonna 2008 valmistunutta modernia ja nykyaikaista logistiikka-aluetta. Tehokkaat neljässä eri rakennuksessa sijaitsevat vuokrattavat varastotilat ovat joustavia ja helposti muunneltavissa erilaisiin asiakkaan tarpeita ja toimintaa tukeviin kokonaisuuksiin. Logistiikkakeskuksesta on vuokrattavana myös isoja varastotilakokonaisuuksia (jopa 15 000 - 30 000 m2) kilpailukykyiseen hintaan.
Vuokrattavat varastotilat voidaan suunnitella palvelemaan mm läpivirtausterminaalina tai U-kierto ratkaisuna. Tiloihin voidaan toteuttaa asiakkaan toimintaan parhaiten soveltuvat hyllyratkaisut. Varastotilojen vapaa korkeus on 6 - 9 metriä ja lattiakantavuus on 4 000 - 5 000 kg/m² . Purkaus- ja lastaustilat on suunniteltu kontti- ja ajoneuvoliikenteen tarpeita varten. Varastojen yhteyteen voidaan toteuttaa tarvittavat toimisto- ja sosiaalitilat. Viereiseltä tontilta on mahdollista vuokrata traileripaikka.
Helsingin Sataman, Tullin ja satamaoperaattoreiden palvelut sijaitsevat samassa logistiikkakeskuksessa.
Vapautuu
Heti
Rakennusvuosi
2008
Energiatehokkuusluokka
Ei lain edellyttämää energiatodistusta
Näkyvällä paikalla
Hissi
Lastauslaituri
Ota yhteyttä
ScanReal Oy LKV
Opus Business Park
Hitsaajankatu 24
00810 Helsinki
info@scanreal.fi
Puh:
Näytä puhelinnumero
020 730 8830
Sopivat toimitilat yhdellä otolla!
Kartoitamme toimitilatarpeesi ja etsimme yrityksellesi parhaiten sopivat vapaat toimitilat. Koska vuokranantajat maksavat palvelumme, on tämä yrityksellesi veloituksetonta.
OTA YHTEYTTÄ - SOVI NÄYTTÖ!
Kaikki kohteemme eivät ole netissä, kerro tilatarpeesi niin kartoitamme vaihtoehdot.
Palvelumme on tilanhakijalle ilmainen
Pyydä lisätietoa
