Vuokrataan varastotilat - Turku
Iso-Heikkiläntie 4, Iso-Heikkilä, 20200 Turku #10797664
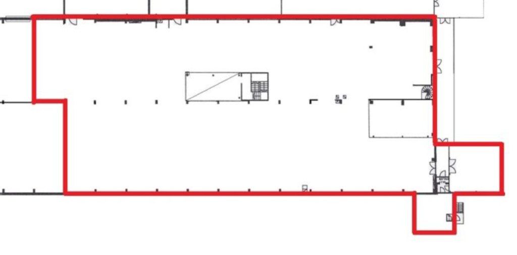
Varasto/ työtilaa Iso-Heikkilässä
Osoite
Iso-Heikkiläntie 4, 20200 Turku
Tilatyyppi
Varastotilaa
984 m2
Pysäköinti
Pihalla
Muuta
Vuokrattavana lämmintä varastotilaa erinomaisella sijainnilla Iso-Heikkilässä, lähellä keskustaa ja satamaa.
Tila tarjoaa hyvän saavutettavuuden ja on ihanteellinen logistiikkaan ja varastointiin.
Varastotilassa on oma lastauslaituri, joka helpottaa tavaroiden lastausta ja purkua. Lisäksi tilan toisessa kerroksessa on pieni toimisto, joka sopii esimerkiksi varaston hallintoon tai muihin toimistotarpeisiin.
Tämä varastotila on monipuolinen ja mukautuu erilaisiin käyttötarkoituksiin.
Hyödynnä erinomainen sijainti ja käytännölliset tilat liiketoimintasi tarpeisiin.
Tervetuloa tutustumaan, varaathan välittäjältä oman esittelyaikasi.
Voit kysyä meiltä myös muita sopivia vaihtoehtoja, kauttamme löydät juuri Teidän tarpeisiinne sopivat tilat. Palvelumme on tilanhakijalle veloitukseton!
Tila tarjoaa hyvän saavutettavuuden ja on ihanteellinen logistiikkaan ja varastointiin.
Varastotilassa on oma lastauslaituri, joka helpottaa tavaroiden lastausta ja purkua. Lisäksi tilan toisessa kerroksessa on pieni toimisto, joka sopii esimerkiksi varaston hallintoon tai muihin toimistotarpeisiin.
Tämä varastotila on monipuolinen ja mukautuu erilaisiin käyttötarkoituksiin.
Hyödynnä erinomainen sijainti ja käytännölliset tilat liiketoimintasi tarpeisiin.
Tervetuloa tutustumaan, varaathan välittäjältä oman esittelyaikasi.
Voit kysyä meiltä myös muita sopivia vaihtoehtoja, kauttamme löydät juuri Teidän tarpeisiinne sopivat tilat. Palvelumme on tilanhakijalle veloitukseton!
Vapautuu
Kysy
Ota yhteyttä
Tuloskiinteistöt Oy
Kauppiaskatu 11 C 23, 20100 Turku
Näytä puhelinnumero
(02) 274 3500
Ritva Nuotio
Commercial Real Estate Advisor LKV, KED
Näytä puhelinnumero
+358 50 5261 744
Karoliina Eklund
Leasing Support Specialist
Näytä puhelinnumero
+358 40 017 8999
Pyydä lisätietoa
