Vuokrataan toimistotilat, tuotantotilat, varastotilat - Helsinki
Mekaanikonkatu 19, Herttoniemi, 00880 Helsinki #10797625
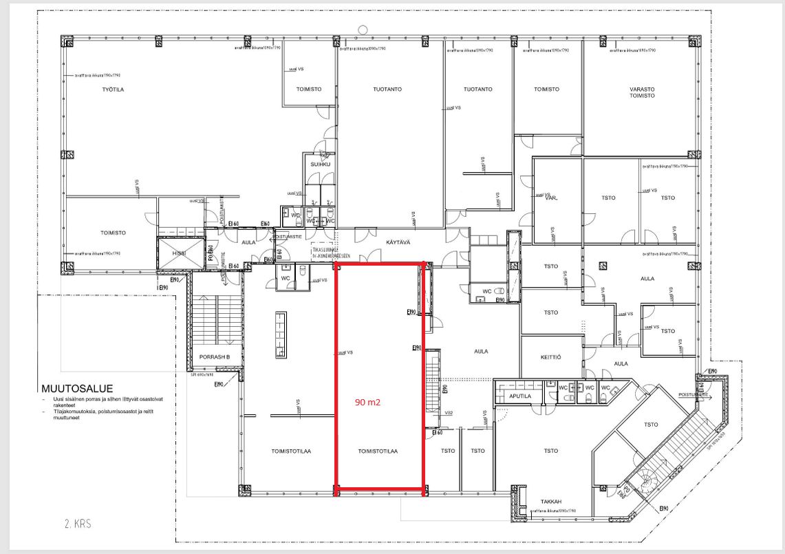
Vuokrataan Herttoniemessä n 90 m2 toimistotilaa, joka soveltuu myös pienimuotoiseen varastointiin tai tuotantoon.Tila toisessa kerroksessa mihin tavahissiyhteys. Tilassa minikeittiö, vessat käytävällä.
Erinomaiset liikenneyhteydet julkisilla.
Yhteystiedot: p. 045 261 6555/Mika tai 020 7290 710
Lisää kohteita: www.premises.fi
Kohteella ei ole lain edellyttämää energiatodistusta.Kerros: 2
Osoite
Mekaanikonkatu 19, 00880 Helsinki
Tilatyyppi
Toimistotilaa
90 m2
Tuotantotilaa
90 m2
Varastotilaa
90 m2
Yhteensä
90 m2
Kulkuyhteydet
Bussit ja Metro
Ota yhteyttä
CRE PREMISES
Puh. Näytä puhelinnumero 020 7290 710
Vantaankoskentie 14
01670 VANTAA
Pyydä lisätietoa
